kontakt
WGN - Nieruchomości
505013452
Administratorem danych osobowych jest AMK Portal sp. z o.o.
mieszkanie na sprzedaż Piotrków Trybunalski, 875 000 zł, 91 m2, z garażem
875 000zł
91m²
9 615 zł/m²
4 pok.piętro: 2/5
Polska, Łódzkie, Piotrków Trybunalski, Centrum, Jagiellońska
Opis
Do sprzedaży duży, przestronny apartament o powierzchni użytkowej 91 m2.
Mieszkanie nowe, komfortowe, wykończone z dużą dbałością.
~Pomieszczenia słoneczne, przestronne, wysokie.
Cena mieszkania 91 m2: 875 000 zł.
~Cena miejsca postojowego: 60 000 zł.
~Cena pomieszczenia gospodarczego: 15 000 zł.
Apartament w kilkuletnim, eleganckim budynku przy ulicy Jagiellońskiej. Centrum miasta. Blisko Park.
~Ładny blok z cegły (z 2019 roku), drugie piętro. Budynek z windą.
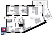
Trzy osobne sypialnie, pokój dzienny, kuchnia, duży balkon, łazienka, wc, korytarz.
~Lokal w bardzo dobrym standardzie, starannie i solidnie wykończony.
Kompletnie wyposażona i umeblowana kuchnia.
~Łazienka z prysznicem i meblami w zabudowie.
~Praktycznie rozmieszczone oświetlenie.
~Rolety zewnętrzne, automatycznie sterowane.
~Solidna stolarka wewnętrzna.
~Podłogi w pokojach, kuchni i korytarzu wykończone wysokiej jakości panelami.
~Łazienka i wc wykończone w markowych płytkach.
~Na balkonie płytki.
~Na ścianach w pomieszczeniach gładzie.
~Drzwi wejściowe antywłamaniowe.
~Pomieszczenie gospodarcze obok mieszkania.
Pomieszczenia z metrażami:
~sypialnia 10m2;
~druga sypialnia 10m2;
~trzecia sypialnia 11m2;
~pokój dzienny z kuchnią i jadalnią - 41m2.
~z salonu z wyjście na duży taras 17 m2;
~hol 10m2;
~wc 1,5m2;
~łazienka z wc 8m2.
Zachodnia, północna i wschodnia ekspozycja pomieszczeń oraz duże przeszklenia dają maksymalne doświetlenie. We wszystkich oknach zewnętrzne rolety automatyczne.
~W budynku dla wszystkich mieszkań przewidziano miejsca postojowe w garażu wielostanowiskowym, do którego zjeżdża cichobieżna winda.
Mieszkanie szybko dostępne. Zapraszamy do oglądania.
Cena mieszkania 91 m2: 875 000 zł.
~Cena miejsca postojowego: 60 000 zł.
~Cena miejsca gospodarczego: 15 000 zł.
U nas pełna obsługa i bezpieczeństwo. Tylko oferty aktualne na www.wgnpiotrkow.pl. Zapraszamy ! Kompleksowa i bezpłatna pomoc w wyborze kredytu hipotecznego. U nas na miejscu bezpłatnie Sprawdzisz ofertę ponad 20 Banków.
MASZ PYTANIA- Skontaktuj się z nami. Kompleksowo i bezpłatnie pomagamy w wyborze kredytu hipotecznego.
WGN Piotrków Trybunalski zapewnia rynkowe ceny, bezpieczeństwo korzystnej transakcji oraz pomoc notariusza. Wyróżniamy się pełnym zaangażowaniem, ekspercką wiedzą i najwyższym poziomem usług
~opartych na ponad 30-letnim doświadczeniu. Stosujemy Kodeks Etyki Zawodowej Polskiej Federacji Rynku Nieruchomości.
~Informacje dotyczące nieruchomości zostały sporządzone na podstawie oświadczeń i nie są ofertą w rozumieniu przepisów prawa, mają charakter wyłącznie informacyjny i mogą podlegać aktualizacji,
~zalecamy ich osobistą weryfikację.
Wszystkie teksty, rysunki, zdjęcia oraz wszystkie inne informacje opublikowane na niniejszych stronach podlegają prawom autorskim. Wszelkie kopiowanie, dystrybucja, elektroniczne przetwarzanie oraz przesyłanie zawartości bez zezwolenia zabronione. Wszelkie prawa zastrzeżone.
Informacje dotyczące nieruchomości zostały sporządzone na podstawie oświadczeń i nie są ofertą w rozumieniu przepisów prawa, mają charakter wyłącznie informacyjny i mogą podlegać aktualizacji, zalecamy ich osobistą weryfikację.
~
Mieszkanie nowe, komfortowe, wykończone z dużą dbałością.
~Pomieszczenia słoneczne, przestronne, wysokie.
Cena mieszkania 91 m2: 875 000 zł.
~Cena miejsca postojowego: 60 000 zł.
~Cena pomieszczenia gospodarczego: 15 000 zł.
Apartament w kilkuletnim, eleganckim budynku przy ulicy Jagiellońskiej. Centrum miasta. Blisko Park.
~Ładny blok z cegły (z 2019 roku), drugie piętro. Budynek z windą.
Trzy osobne sypialnie, pokój dzienny, kuchnia, duży balkon, łazienka, wc, korytarz.
~Lokal w bardzo dobrym standardzie, starannie i solidnie wykończony.
Kompletnie wyposażona i umeblowana kuchnia.
~Łazienka z prysznicem i meblami w zabudowie.
~Praktycznie rozmieszczone oświetlenie.
~Rolety zewnętrzne, automatycznie sterowane.
~Solidna stolarka wewnętrzna.
~Podłogi w pokojach, kuchni i korytarzu wykończone wysokiej jakości panelami.
~Łazienka i wc wykończone w markowych płytkach.
~Na balkonie płytki.
~Na ścianach w pomieszczeniach gładzie.
~Drzwi wejściowe antywłamaniowe.
~Pomieszczenie gospodarcze obok mieszkania.
Pomieszczenia z metrażami:
~sypialnia 10m2;
~druga sypialnia 10m2;
~trzecia sypialnia 11m2;
~pokój dzienny z kuchnią i jadalnią - 41m2.
~z salonu z wyjście na duży taras 17 m2;
~hol 10m2;
~wc 1,5m2;
~łazienka z wc 8m2.
Zachodnia, północna i wschodnia ekspozycja pomieszczeń oraz duże przeszklenia dają maksymalne doświetlenie. We wszystkich oknach zewnętrzne rolety automatyczne.
~W budynku dla wszystkich mieszkań przewidziano miejsca postojowe w garażu wielostanowiskowym, do którego zjeżdża cichobieżna winda.
Mieszkanie szybko dostępne. Zapraszamy do oglądania.
Cena mieszkania 91 m2: 875 000 zł.
~Cena miejsca postojowego: 60 000 zł.
~Cena miejsca gospodarczego: 15 000 zł.
U nas pełna obsługa i bezpieczeństwo. Tylko oferty aktualne na www.wgnpiotrkow.pl. Zapraszamy ! Kompleksowa i bezpłatna pomoc w wyborze kredytu hipotecznego. U nas na miejscu bezpłatnie Sprawdzisz ofertę ponad 20 Banków.
MASZ PYTANIA- Skontaktuj się z nami. Kompleksowo i bezpłatnie pomagamy w wyborze kredytu hipotecznego.
WGN Piotrków Trybunalski zapewnia rynkowe ceny, bezpieczeństwo korzystnej transakcji oraz pomoc notariusza. Wyróżniamy się pełnym zaangażowaniem, ekspercką wiedzą i najwyższym poziomem usług
~opartych na ponad 30-letnim doświadczeniu. Stosujemy Kodeks Etyki Zawodowej Polskiej Federacji Rynku Nieruchomości.
~Informacje dotyczące nieruchomości zostały sporządzone na podstawie oświadczeń i nie są ofertą w rozumieniu przepisów prawa, mają charakter wyłącznie informacyjny i mogą podlegać aktualizacji,
~zalecamy ich osobistą weryfikację.
Wszystkie teksty, rysunki, zdjęcia oraz wszystkie inne informacje opublikowane na niniejszych stronach podlegają prawom autorskim. Wszelkie kopiowanie, dystrybucja, elektroniczne przetwarzanie oraz przesyłanie zawartości bez zezwolenia zabronione. Wszelkie prawa zastrzeżone.
Informacje dotyczące nieruchomości zostały sporządzone na podstawie oświadczeń i nie są ofertą w rozumieniu przepisów prawa, mają charakter wyłącznie informacyjny i mogą podlegać aktualizacji, zalecamy ich osobistą weryfikację.
~
Szczegóły
Typ nieruchomości:
mieszkanie na sprzedaż
Dodano:
2025-05-22 00:03:42
Ostatnia aktualizacja:
2025-06-27 23:56:02
Powierzchnia:
91 m²
Cena:
875 000 zł.
Cena za m²:
9 615,38 zł.
Piętro:
2 / 5
Liczba pokoi:
4
Lokalizacja:
Polska, Łódzkie, Piotrków Trybunalski, Centrum, Jagiellońska
Rok budowy:
2018
Liczba poziomów:
jednopoziomowe
Powierzchnia Piwnicy:
2
Wysokość czynszu:
900
Numer licencji:
nr 17049
Forma własności:
własność
Typ zabudowy:
apartamentowiec
Wyłączność:
nie
Materiał konstrukcyjny:
cegła
Stan mieszkania:
wysoki standard
Stan instalacji:
nowa
Kuchnia:
z oknem, w aneksie, z wyposażeniem
Okna:
1
Kształt:
32
Powierzchnia dodatkowa:
balkon, taras, piwnica
Głośność:
ciche
Udogodnienia:
internet, TV kablowa, winda, centralne ogrzewanie, ochrona
Garaż:
garaż, parking strzeżony
Agent prowadzący:
Bartosz Glaza, Piotrków Trybunalski, Sienkiewicza 18
Pośrednik:
WGN - Nieruchomości
Nr ogłoszenia:
klikmapa-1283539
Skontaktuj się z ogłoszeniodawcą
Administratorem danych osobowych jest AMK Portal sp. z o.o.
WGN - Nieruchomości
505013452