dom do wynajęcia Kielce, 7 000 zł, 280 m2, wolnostojący
Ogłoszenie archiwalne
7 000zł
280m²
25 zł/m²
11 pok.
świętokrzyskie, Kielce m., Kielce, KSM
Opis
Dom do wynajęcia pod działalność gospodarczą KSM
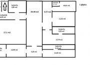
Do wynajęcia 2 piętra domu wolnostojącego, zlokalizowanego na osiedlu KSM o łącznej powierzchni całkowitej około 280 m2. Możliwość najmu tylko do prowadzenia działalności gospodarczej.
Wynajmowana powierzchnia składa się łącznie z 11 pomieszczeń (o powierzchni od około 11,32 m2 do około 27,65 m2) oraz 7 łazienek:
I piętro (łączna powierzchnia około 146,36 m2) - 7 pokoi, 2 balkony i 5 łazienek (w pokojach);
II piętro (łączna powierzchnia około 133,66 m2) - 4 pokoje, 2 łazienki oraz schowek.
Na podłogach pokoi znajduje się parkiet, w łazienkach płytki. Okna plastikowe z antywłamaniowymi, metalowymi roletami. Możliwość zamontowania krat w oknach. Dom ogrzewany gazem. Dom posiada 2 balkony.
Budynek znajduje się w spokojnej okolicy w sąsiedztwie zabudowy jednorodzinnej.
Możliwość adaptacji pomieszczeń.
Miesięczny najmu - 7000 zł netto/brutto + prąd, woda, gaz, śmieci.
Kaucja - 10 000 zł
Kontakt: 537 193 491
Oferta wysłana z systemu Galactica Virgo
Wynajmowana powierzchnia składa się łącznie z 11 pomieszczeń (o powierzchni od około 11,32 m2 do około 27,65 m2) oraz 7 łazienek:
I piętro (łączna powierzchnia około 146,36 m2) - 7 pokoi, 2 balkony i 5 łazienek (w pokojach);
II piętro (łączna powierzchnia około 133,66 m2) - 4 pokoje, 2 łazienki oraz schowek.
Na podłogach pokoi znajduje się parkiet, w łazienkach płytki. Okna plastikowe z antywłamaniowymi, metalowymi roletami. Możliwość zamontowania krat w oknach. Dom ogrzewany gazem. Dom posiada 2 balkony.
Budynek znajduje się w spokojnej okolicy w sąsiedztwie zabudowy jednorodzinnej.
Możliwość adaptacji pomieszczeń.
Miesięczny najmu - 7000 zł netto/brutto + prąd, woda, gaz, śmieci.
Kaucja - 10 000 zł
Kontakt: 537 193 491
Oferta wysłana z systemu Galactica Virgo
Szczegóły
Typ nieruchomości:
dom do wynajęcia
Dodano:
2024-03-29 14:38:03
Ostatnia aktualizacja:
2024-06-12 14:27:01
Powierzchnia:
280 m²
Cena:
7 000 zł.
Cena za m²:
25 zł.
Liczba pokoi:
11
Lokalizacja:
świętokrzyskie, Kielce m., Kielce, KSM
Rok budowy:
1993
Typ nieruchomości:
wolnostojący
Material budowlany:
cegła
Stan budynku:
do odświeżenia
Ogrzewanie:
gazowe
Podłączenie wody:
piec gazowy dwufunkcyjny
Gaz:
jest
Umeblowanie pomieszczeń:
Tak
Agent prowadzący:
Mariusz Karyś
Balkon:
Tak
Wyłączność:
Nie
Zwolnienie z prowizji:
Nie
Forma własności:
Własność
Powierzchnia łazienki:
3,85
Powierzchnia działki:
736
Liczba łazienek:
7
Stolarka okienna:
PCV
Energia elektryczna:
Tak
Kanalizacja:
tak
Łazienka / wc:
Tak
Typ dachu:
blachodachówka
Szerokość działki:
18
Ogrodzenie:
ogrodzona
Droga dojazdowa:
asfalt
Rynek:
wtórny
Pośrednik:
AS NIERUCHOMOŚCI
Nr ogłoszenia:
klikmapa-1095673