klikmapa.pl/o/zabrze-235-000-zl-487-m2-m2-id1320139.html
Nr ogłoszenia: klikmapa-1320139 (aby przejść do tego ogłoszenia wpisz klikmapa-1320139 w wyszukiwarce na klikmapa.pl)
Zabrze, 235 000 zł, 48.7 m2, M2
235 000zł
4 825zł/m²
48,70 m²
2 pok.
POLSKA, ŚLĄSKIE, ZABRZE
Opis
2- pokojowe mieszkanie, niski blok, Zabrze
2-pokojowe mieszkanie w świetnie skomunikowanej lokalizacji – Zabrze, ul. Czarneckiego
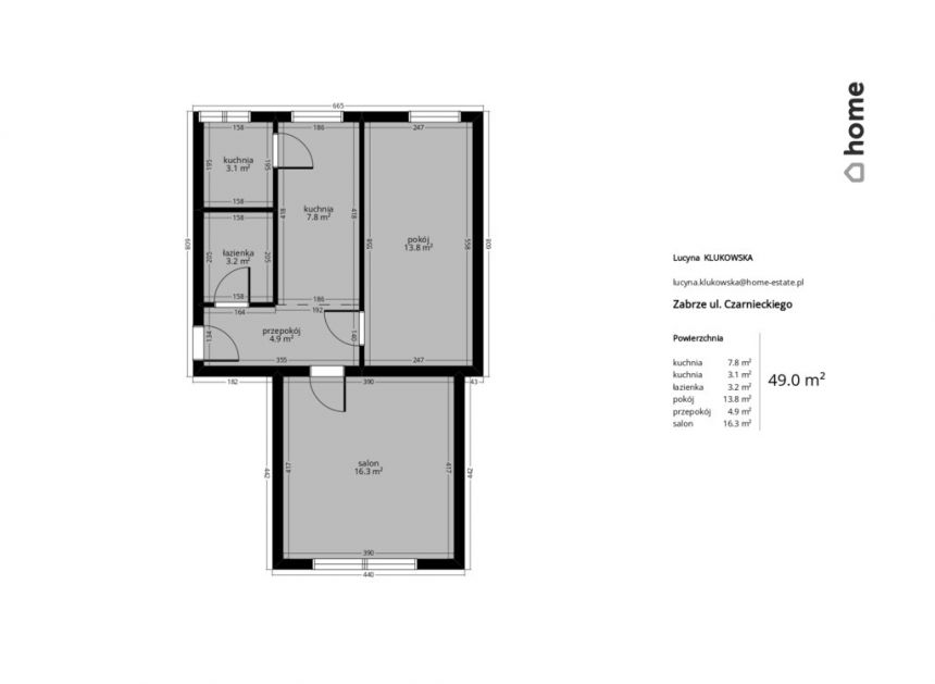
Na sprzedaż funkcjonalne mieszkanie o powierzchni 48,7 m², zlokalizowane na parterze niskiego bloku z lat 30. XX wieku.
Rozkład pomieszczeń:
• Przestronny salon (ok. 16 m², w kwadracie),
• Ustawna sypialnia (ok. 11,5 m²),
• Jasna kuchnia (ok. 11,5 m²),
• Zabudowany balkon o powierzchni ok. 2,85 m² (pełni funkcję dodatkowej przestrzeni kuchennej),
• Łazienka (ok. 3,5 m²),
• Do mieszkania przynależy duża piwnica o powierzchni 9,7 m².
Stan techniczny:
Mieszkanie do remontu lub odświeżenia – idealna baza do własnej aranżacji.
Na podłogach znajdują się panele w dobrym stanie, okna PCV wyposażone w rolety antywłamaniowe.
Instalacja elektryczna wykonana w miedzi.
Centralne ogrzewanie miejskie.
Budynek po termomodernizacji.
Atutem mieszkania są niskie koszty utrzymania. Opłaty miesięczne:
• Czynsz: 139,28 zł
• Fundusz remontowy: 146,10 zł
• Zaliczka na CO: 185,06 zł
Lokalizacja:
Mieszkanie znajduje się w doskonale skomunikowanej części Zabrza, z szybkim dojazdem do centrum miasta i głównych tras - DTŚ, autostrada A4. W pobliżu także tereny zielone oraz Ogród Botaniczny. Niedaleko Politechnika Śląska, szkoły oraz przedszkole.
To idealna propozycja dla osób szukających mieszkania w zielonej okolicy, z jednoczesnym dostępem do pełnej infrastruktury miejskiej.
Zapraszam do kontaktu i umówienia się na prezentację.
Oferta na wyłączność tylko w naszym biurze.
Powyższa oferta ma wyłącznie charakter informacyjny i nie stanowi oferty handlowej w rozumieniu przepisów Kodeksu Cywilnego.
Oferta wysłana z programu dla biur nieruchomości ASARI CRM (asaricrm.com)
Na sprzedaż funkcjonalne mieszkanie o powierzchni 48,7 m², zlokalizowane na parterze niskiego bloku z lat 30. XX wieku.
Rozkład pomieszczeń:
• Przestronny salon (ok. 16 m², w kwadracie),
• Ustawna sypialnia (ok. 11,5 m²),
• Jasna kuchnia (ok. 11,5 m²),
• Zabudowany balkon o powierzchni ok. 2,85 m² (pełni funkcję dodatkowej przestrzeni kuchennej),
• Łazienka (ok. 3,5 m²),
• Do mieszkania przynależy duża piwnica o powierzchni 9,7 m².
Stan techniczny:
Mieszkanie do remontu lub odświeżenia – idealna baza do własnej aranżacji.
Na podłogach znajdują się panele w dobrym stanie, okna PCV wyposażone w rolety antywłamaniowe.
Instalacja elektryczna wykonana w miedzi.
Centralne ogrzewanie miejskie.
Budynek po termomodernizacji.
Atutem mieszkania są niskie koszty utrzymania. Opłaty miesięczne:
• Czynsz: 139,28 zł
• Fundusz remontowy: 146,10 zł
• Zaliczka na CO: 185,06 zł
Lokalizacja:
Mieszkanie znajduje się w doskonale skomunikowanej części Zabrza, z szybkim dojazdem do centrum miasta i głównych tras - DTŚ, autostrada A4. W pobliżu także tereny zielone oraz Ogród Botaniczny. Niedaleko Politechnika Śląska, szkoły oraz przedszkole.
To idealna propozycja dla osób szukających mieszkania w zielonej okolicy, z jednoczesnym dostępem do pełnej infrastruktury miejskiej.
Zapraszam do kontaktu i umówienia się na prezentację.
Oferta na wyłączność tylko w naszym biurze.
Powyższa oferta ma wyłącznie charakter informacyjny i nie stanowi oferty handlowej w rozumieniu przepisów Kodeksu Cywilnego.
Oferta wysłana z programu dla biur nieruchomości ASARI CRM (asaricrm.com)
Szczegóły
Typ nieruchomości:
mieszkanie na sprzedaż
Dodano:
2025-07-17 15:07:03
Powierzchnia:
48,70 m²
Cena:
235 000 zł.
Cena za m²:
4 825,46 zł.
Liczba pokoi:
2
Lokalizacja:
POLSKA, ŚLĄSKIE, ZABRZE
Rok budowy:
1930
Wysokość czynszu:
250
Rodzaj mieszkania:
2-POKOJOWE
Zabezpieczenia:
DOMOFON
Rodzaj budynku:
NISKI BLOK
Standard:
DO REMONTU
Ogrzewanie:
C.O. Z SIECI MIEJSKIEJ
Forma własności:
WŁASNOŚĆ
Typ umowy pośrednictwa:
WYŁĄCZNOŚĆ
Agent:
Lucyna Klukowska
Oferta specjalna:
NIE
Oferta własna:
TAK
Rynek:
WTÓRNY
Pośrednik:
Home sp. z o.o.
Nr ogłoszenia:
klikmapa-1320139