klikmapa.pl/o/wroclaw-stare-miasto-1-269-266-zl-6751-m2-pietro-55-id1316708.html
Nr ogłoszenia: klikmapa-1316708 (aby przejść do tego ogłoszenia wpisz klikmapa-1316708 w wyszukiwarce na klikmapa.pl)
Wrocław Stare Miasto, 1 269 266 zł, 67.51 m2, pietro 5/5
1 269 266zł
18 801zł/m²
67,51 m²
3 pok.piętro: 5
/5
Polska, dolnośląskie, Wrocław, Stare Miasto
Opis
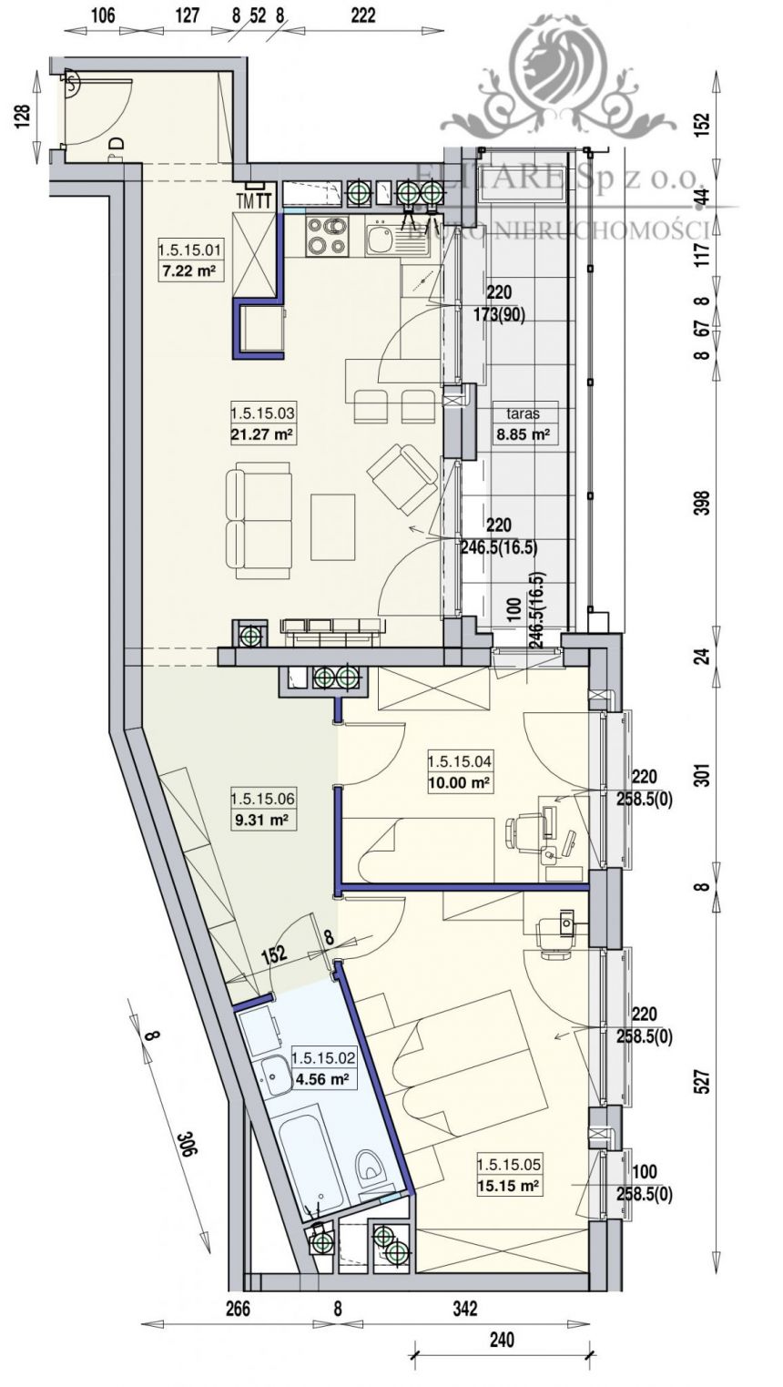
Mieszkanie 67,51m2 , 3 pokojowe w Centrum Wrocławia /Stare Miasto
Apartament na ostatnim najwyższym piętrze!
Apartament o największej pow. 67,5m2 położony na 5 piętrze w 5-piętrowym apartamentowcu z windą w super lokalizacji w samym Centrum Wrocławia obok Dworca Głównego – nowa jakość wpleciona w historyczną tkankę miejską.
Powierzchnia apartamentu to 67,5 m2, na którą składa się salon o pow.21,27m2 z kuchnią w aneksie, z salonu wyjście taras o pow. 8.85m2, mamy też dwa dodatkowe oddzielne pokoje o pow. 15,15m2 i 10m2, mamy też oczywiście łazienkę z toaletą o pow. 4,56m2 oraz przedpokój z miejscem na szafę w zabudowie.
Wysokość mieszkania aż 288cm. Ekspozycja okien wschodnio-południowa, mieszkanie jednostronne z widokiem na historyczną ulicę miejską i panoramę miejską. Wszystkie media miejskie włącznie z ogrzewaniem, mieszkanie oddawane w stanie deweloperskim. Apartamentowiec jest inwestycją zamykającą zabudowę kamieniczną. Tu współczesna architektura uzupełnia miejską tkankę, a funkcjonalne mieszkania tworzą przestrzeń do dynamicznego życia i świetnych inwestycji. Z myślą o komforcie użytkowników zaprojektowano:
- garaż podziemny z miejscami postojowymi oraz komórki lokatorskie na piętrach
- każdy apartament ma balkon albo od strony spokojnego wewnętrznego dziedzińca lub od strony dynamicznej historycznej ulicy z pocztówkowym widokiem na gmach Dworca Głównego
- w cenie apartamentu wyposażone w inteligentny zamek i system smart home w standardzie podstawowym z możliwością dodatkowego rozszerzenia
- kontrola dostępu do budynku, wind i bram garażowych z poziomu aplikacji
- propozycja atrakcyjnej oferty cenowej wykończenia Pod Klucz typowo pod wynajem lub w klasie podwyższonej z myślą o sobie lub luksusowym przyszłym najemcy,
- budynek wykończony wysokiej jakości materiałami o nowoczesnej formie, klatki schodowe w podwyższonym standardzie, budynek wyposażony w windy dostępne z poziomu garażu podziemnego. Szklane witryny wejściowe, eleganckie, nowoczesne i prestiżowe wykończenie budynku, dziedzińca i części wspólnych.
WYJĄTKOWA LOKALIZACJA – Stare Miasto, Przedmieście Świdnickie w odległości dwuminutowego spaceru od Dworca Głównego z bezpośrednim połączeniem autobusowym z wrocławskim Portem Lotniczym, w samym sercu komunikacji miejskiej tramwajowej, autobusowej i kolejowej jednocześnie zaledwie kilka minut spacerem dzieli Cię od kawiarni, barów i restauracji oraz od ulicy Bogusławskiego, czyli słynnego, wrocławskiego “nasypu”. Tu wieczorami dzieje się życie Wrocławia. To jedno z najmodniejszych miejsc spotkań i prawdziwa uczta dla zmysłów. Życie w centrum nowoczesnego miasta daje Ci wolność, a Nowy apartamentowiec to synonim mobilności i jedna z ciekawszych propozycji inwestycji.
TERMINY
Realizacja budowy do 10.2026r.
BEZPIECZNY ZAKUP
Umowa deweloperska / Bez PCC / Bez Prowizji od Kupującego.
DOSTĘPNE APARTAMENTY
Oferta funkcjonalnych mieszkań, głównie 1 i 2-pokojowych, o przemyślanych, ustawnych układach, zapewniających elastyczność aranżacji, jesteśmy już na końcówce sprzedaży z całej inwestycji dostępne jest tylko 19 mieszkań - nie czekaj, zadzwoń, przyjrzyj się dostępnej ofercie i umów się na prezentację lokali w 3D, zapraszam.
Ania Cieślak- Doradca klienta
tel. 535 422 198
anna.cieslak@elitare.pl
Nr oferty 10_ 15153a /AC
Zamieszczone na naszych stronach informacje nie stanowią oferty w rozumieniu Kodeksu Cywilnego, a dane w nich zawarte mają jedynie charakter informacyjny.
Apartament o największej pow. 67,5m2 położony na 5 piętrze w 5-piętrowym apartamentowcu z windą w super lokalizacji w samym Centrum Wrocławia obok Dworca Głównego – nowa jakość wpleciona w historyczną tkankę miejską.
Powierzchnia apartamentu to 67,5 m2, na którą składa się salon o pow.21,27m2 z kuchnią w aneksie, z salonu wyjście taras o pow. 8.85m2, mamy też dwa dodatkowe oddzielne pokoje o pow. 15,15m2 i 10m2, mamy też oczywiście łazienkę z toaletą o pow. 4,56m2 oraz przedpokój z miejscem na szafę w zabudowie.
Wysokość mieszkania aż 288cm. Ekspozycja okien wschodnio-południowa, mieszkanie jednostronne z widokiem na historyczną ulicę miejską i panoramę miejską. Wszystkie media miejskie włącznie z ogrzewaniem, mieszkanie oddawane w stanie deweloperskim. Apartamentowiec jest inwestycją zamykającą zabudowę kamieniczną. Tu współczesna architektura uzupełnia miejską tkankę, a funkcjonalne mieszkania tworzą przestrzeń do dynamicznego życia i świetnych inwestycji. Z myślą o komforcie użytkowników zaprojektowano:
- garaż podziemny z miejscami postojowymi oraz komórki lokatorskie na piętrach
- każdy apartament ma balkon albo od strony spokojnego wewnętrznego dziedzińca lub od strony dynamicznej historycznej ulicy z pocztówkowym widokiem na gmach Dworca Głównego
- w cenie apartamentu wyposażone w inteligentny zamek i system smart home w standardzie podstawowym z możliwością dodatkowego rozszerzenia
- kontrola dostępu do budynku, wind i bram garażowych z poziomu aplikacji
- propozycja atrakcyjnej oferty cenowej wykończenia Pod Klucz typowo pod wynajem lub w klasie podwyższonej z myślą o sobie lub luksusowym przyszłym najemcy,
- budynek wykończony wysokiej jakości materiałami o nowoczesnej formie, klatki schodowe w podwyższonym standardzie, budynek wyposażony w windy dostępne z poziomu garażu podziemnego. Szklane witryny wejściowe, eleganckie, nowoczesne i prestiżowe wykończenie budynku, dziedzińca i części wspólnych.
WYJĄTKOWA LOKALIZACJA – Stare Miasto, Przedmieście Świdnickie w odległości dwuminutowego spaceru od Dworca Głównego z bezpośrednim połączeniem autobusowym z wrocławskim Portem Lotniczym, w samym sercu komunikacji miejskiej tramwajowej, autobusowej i kolejowej jednocześnie zaledwie kilka minut spacerem dzieli Cię od kawiarni, barów i restauracji oraz od ulicy Bogusławskiego, czyli słynnego, wrocławskiego “nasypu”. Tu wieczorami dzieje się życie Wrocławia. To jedno z najmodniejszych miejsc spotkań i prawdziwa uczta dla zmysłów. Życie w centrum nowoczesnego miasta daje Ci wolność, a Nowy apartamentowiec to synonim mobilności i jedna z ciekawszych propozycji inwestycji.
TERMINY
Realizacja budowy do 10.2026r.
BEZPIECZNY ZAKUP
Umowa deweloperska / Bez PCC / Bez Prowizji od Kupującego.
DOSTĘPNE APARTAMENTY
Oferta funkcjonalnych mieszkań, głównie 1 i 2-pokojowych, o przemyślanych, ustawnych układach, zapewniających elastyczność aranżacji, jesteśmy już na końcówce sprzedaży z całej inwestycji dostępne jest tylko 19 mieszkań - nie czekaj, zadzwoń, przyjrzyj się dostępnej ofercie i umów się na prezentację lokali w 3D, zapraszam.
Ania Cieślak- Doradca klienta
tel. 535 422 198
anna.cieslak@elitare.pl
Nr oferty 10_ 15153a /AC
Zamieszczone na naszych stronach informacje nie stanowią oferty w rozumieniu Kodeksu Cywilnego, a dane w nich zawarte mają jedynie charakter informacyjny.
Szczegóły
Typ nieruchomości:
mieszkanie na sprzedaż
Dodano:
2025-07-11 00:15:02
Powierzchnia:
67,51 m²
Cena:
1 269 266 zł.
Cena za m²:
18 801,16 zł.
Piętro:
5 / 5
Liczba pokoi:
3
Lokalizacja:
Polska, dolnośląskie, Wrocław, Stare Miasto
Rok budowy:
2026
Typ budynku:
apartamentowiec
Material budowlany:
pustak
Stan budynku:
bardzo dobry
Stan nieruchomości:
bez białego montażu i podłóg
Ogrzewanie:
Tak
Miejsca parkingowe:
parking podziemny
Agent prowadzący:
Anna Cieślak
Licencja pośrednika:
25291
Wysokość pomieszczeń:
288
Balkon:
Nie
Taras:
Tak
Piwnica:
Nie
Osiedle zamknięte:
Tak
Zwolnienie z prowizji:
Tak
Forma własności:
własność
Powierzchnia łazienki:
4,56
Liczba łazienek:
1
Domofon:
Tak
Łazienka / wc:
Tak
Winda:
Tak
Kuchnia:
aneks
Pośrednik:
Elitare Nieruchomości
Nr ogłoszenia:
klikmapa-1316708