klikmapa.pl/o/wroclaw-krzyki-561-122-zl-4238-m2-w-bloku-id1150407.html
Nr ogłoszenia: klikmapa-1150407 (aby przejść do tego ogłoszenia wpisz klikmapa-1150407 w wyszukiwarce na klikmapa.pl)
Wrocław Krzyki, 561 122 zł, 42.38 m2, w bloku
561 122zł
13 240zł/m²
42,38 m²
2 pok.piętro: 2
/2
Polska, dolnośląskie, Wrocław, Krzyki
Opis
2pok.mieszk.na Krzykach z balkonem/oferta od dewelopera
OFERTA OD DEWELOPERA BEZ PROWIZJI DLA BIURA I PODATKU PCC 2%!!!
Inwestycja ta zlokalizowana w południowej części Wrocławia w granicach dzielnicy Krzyki - Ołtaszyn przy skrzyżowaniu ul. Nefrytowej i Brylantowej. Inwestycja ta ulokowana została w otoczeniu innych budynków mieszkalnych o niskiej zabudowie, harmonijnie rozmieszczonych i charakteryzujących się nowoczesną architekturą.
Budynek całkowicie podpiwniczony. Garaż na kondygnacji podziemnej zawiera 28 miejsc postojowych. W garażu podziemnym znajdują się 24 komórki lokatorskie o pow. po ok. 5m2. Zakup miejsca jak i komórki lokatorskiej jest obligatoryjny i należy dodać ich ceny do lokalu mieszkalnego. Instalacja monitoringu przestrzeni wspólnej w budynku oraz na zewnątrz. Bardzo duże okna na inwestycji. Okazałe przeszklenia to niewątpliwie atut każdego wnętrza. Okna wpuszczą dużo naturalnego światła i dodadzą charakteru mieszkaniom. Ważnym udogodnieniem jest ogrzewanie podłogowe (zastosowane w mieszkaniach 2 i więcej pokojowych). To rozwiązanie zapewni przyszłym mieszkańcom łatwiejszą aranżację co uatrakcyjni wnętrza. Ogrzewanie podłogowe charakteryzuje bezwładność termiczną, czyli wydłużony czas wychładzania pomieszczenia. W mieszkaniach 1 pokojowych w trosce o zapewnienie odpowiedniej temperatury i szybkości jej regulacji zastosowano ogrzewanie standardowe – grzejniki. W każdym pokoju zaprojektowano gniazda RTV-SAT/Internet. Rolety zewnętrzne na wszystkich kondygnacjach. Pozwoli to ograniczyć koszty ogrzewania w zimie, kiedy to zredukują ubytki ciepła, a także podczas letnich upałów ochronią przed nagrzewaniem pomieszczeń i pozwolą utrzymać komfortową temperaturę. Atutem rolet jest skuteczne zaciemnienie pomieszczeń, które zapewnią bezpieczeństwo i intymność.
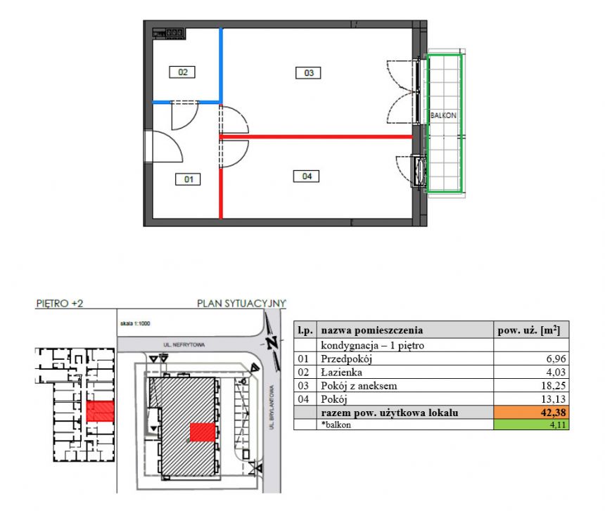
Mieszkanie ma powierzchnie 42,38m2 znajduje się na 2 piętrze w 2 piętrowym bloku z windą, składa się z salonu z aneksem kuchennym o powierzchni 18,25m2, z salonu wyjście na balkon o powierzchni 4,11 m2. W mieszkaniu znajduje się sypialnia o powierzchni 13,13m2, łazienka o powierzchni 4,11m2 oraz przedpokój z miejscem na szafę w zabudowie o powierzchni 6,96m2. Mieszkanie realizowane w stanie deweloperskim do samodzielnego wykończenia.
Idealna do rodzin z dziećmi ze względu na zaplecze oświatowe w okolicy – Szkoła Podstawowa nr 34 przy ul. Gałczyńskiego oraz Przedszkole przy Kurpiów. Na Ołtaszynie otwarto NZOZ „Twój Lekarz” który świadczy usługi w zakresie podstawowej opieki zdrowotnej, a także specjalistycznej. Ta urokliwa lokalizacja daje możliwość obcowania z naturą dzięki rozległym terenom zielonym - Tor Wyścigów Konnych Partynice, Park Kleciński, Park Południowy, zamek Topacz. Dzięki rozbudowanej sieci ścieżek rowerowych lokalizację pokochają aktywni. Dogodne połączenia komunikacyjne dzięki bliskości AOW. Osiedle posiada również bardzo dobre połączenie z centrum Wrocławia. Inwestycja zlokalizowana zaledwie 8 km od wrocławskiego Rynku. Komunikacja miejska – autobus - linie nr 113 oraz 612. Atutem inwestycji jest bliskość Bielan Wrocławskich, gdzie usytuowane są liczne centra handlowe. Sam Ołtaszyn przez ostanie lata rozkwitł w zakresie rozwoju bazy handlowo-usługowej. Głównie wzdłuż ul. Zwycięskiej mieszczą się liczne sklepy, punkty usługowe, biura, restauracje, punkt fitness i siłownia. Na samej ul. Brylantowej w bezpośrednim sąsiedztwie naszej inwestycji znajdziemy sklep spożywczy, cukiernię i restaurację.
A jeżeli woli Pan/Pani mniejsze/większe mieszkanie na innym piętrze lub z ogrodem – proszę o kontakt, a przygotuje ofertę pod preferencje.
Zapewniam
- profesjonalną obsługę, gwarantowaną wieloletnim doświadczeniem w branży nieruchomości-możliwość bezpłatnej rezerwacji mieszkania
- kompleksowe wsparcie na każdym etapie transakcji
- gwarancję bezpiecznego zakupu
- oszczędność czasu
-pomoc w uzyskaniu kredytu na najlepszych warunkach
- kompleksowe doradztwo
Anna Kamuda- Doradca klienta
tel. 535 422 188
anna.kamuda@elitare.pl
Nr oferty 05_NEF_2.10/AK/2024
Zamieszczone na naszych stronach informacje nie stanowią oferty w rozumieniu Kodeksu Cywilnego, a dane w nich zawarte mają jedynie charakter informacyjny.
Inwestycja ta zlokalizowana w południowej części Wrocławia w granicach dzielnicy Krzyki - Ołtaszyn przy skrzyżowaniu ul. Nefrytowej i Brylantowej. Inwestycja ta ulokowana została w otoczeniu innych budynków mieszkalnych o niskiej zabudowie, harmonijnie rozmieszczonych i charakteryzujących się nowoczesną architekturą.
Budynek całkowicie podpiwniczony. Garaż na kondygnacji podziemnej zawiera 28 miejsc postojowych. W garażu podziemnym znajdują się 24 komórki lokatorskie o pow. po ok. 5m2. Zakup miejsca jak i komórki lokatorskiej jest obligatoryjny i należy dodać ich ceny do lokalu mieszkalnego. Instalacja monitoringu przestrzeni wspólnej w budynku oraz na zewnątrz. Bardzo duże okna na inwestycji. Okazałe przeszklenia to niewątpliwie atut każdego wnętrza. Okna wpuszczą dużo naturalnego światła i dodadzą charakteru mieszkaniom. Ważnym udogodnieniem jest ogrzewanie podłogowe (zastosowane w mieszkaniach 2 i więcej pokojowych). To rozwiązanie zapewni przyszłym mieszkańcom łatwiejszą aranżację co uatrakcyjni wnętrza. Ogrzewanie podłogowe charakteryzuje bezwładność termiczną, czyli wydłużony czas wychładzania pomieszczenia. W mieszkaniach 1 pokojowych w trosce o zapewnienie odpowiedniej temperatury i szybkości jej regulacji zastosowano ogrzewanie standardowe – grzejniki. W każdym pokoju zaprojektowano gniazda RTV-SAT/Internet. Rolety zewnętrzne na wszystkich kondygnacjach. Pozwoli to ograniczyć koszty ogrzewania w zimie, kiedy to zredukują ubytki ciepła, a także podczas letnich upałów ochronią przed nagrzewaniem pomieszczeń i pozwolą utrzymać komfortową temperaturę. Atutem rolet jest skuteczne zaciemnienie pomieszczeń, które zapewnią bezpieczeństwo i intymność.
Mieszkanie ma powierzchnie 42,38m2 znajduje się na 2 piętrze w 2 piętrowym bloku z windą, składa się z salonu z aneksem kuchennym o powierzchni 18,25m2, z salonu wyjście na balkon o powierzchni 4,11 m2. W mieszkaniu znajduje się sypialnia o powierzchni 13,13m2, łazienka o powierzchni 4,11m2 oraz przedpokój z miejscem na szafę w zabudowie o powierzchni 6,96m2. Mieszkanie realizowane w stanie deweloperskim do samodzielnego wykończenia.
Idealna do rodzin z dziećmi ze względu na zaplecze oświatowe w okolicy – Szkoła Podstawowa nr 34 przy ul. Gałczyńskiego oraz Przedszkole przy Kurpiów. Na Ołtaszynie otwarto NZOZ „Twój Lekarz” który świadczy usługi w zakresie podstawowej opieki zdrowotnej, a także specjalistycznej. Ta urokliwa lokalizacja daje możliwość obcowania z naturą dzięki rozległym terenom zielonym - Tor Wyścigów Konnych Partynice, Park Kleciński, Park Południowy, zamek Topacz. Dzięki rozbudowanej sieci ścieżek rowerowych lokalizację pokochają aktywni. Dogodne połączenia komunikacyjne dzięki bliskości AOW. Osiedle posiada również bardzo dobre połączenie z centrum Wrocławia. Inwestycja zlokalizowana zaledwie 8 km od wrocławskiego Rynku. Komunikacja miejska – autobus - linie nr 113 oraz 612. Atutem inwestycji jest bliskość Bielan Wrocławskich, gdzie usytuowane są liczne centra handlowe. Sam Ołtaszyn przez ostanie lata rozkwitł w zakresie rozwoju bazy handlowo-usługowej. Głównie wzdłuż ul. Zwycięskiej mieszczą się liczne sklepy, punkty usługowe, biura, restauracje, punkt fitness i siłownia. Na samej ul. Brylantowej w bezpośrednim sąsiedztwie naszej inwestycji znajdziemy sklep spożywczy, cukiernię i restaurację.
A jeżeli woli Pan/Pani mniejsze/większe mieszkanie na innym piętrze lub z ogrodem – proszę o kontakt, a przygotuje ofertę pod preferencje.
Zapewniam
- profesjonalną obsługę, gwarantowaną wieloletnim doświadczeniem w branży nieruchomości-możliwość bezpłatnej rezerwacji mieszkania
- kompleksowe wsparcie na każdym etapie transakcji
- gwarancję bezpiecznego zakupu
- oszczędność czasu
-pomoc w uzyskaniu kredytu na najlepszych warunkach
- kompleksowe doradztwo
Anna Kamuda- Doradca klienta
tel. 535 422 188
anna.kamuda@elitare.pl
Nr oferty 05_NEF_2.10/AK/2024
Zamieszczone na naszych stronach informacje nie stanowią oferty w rozumieniu Kodeksu Cywilnego, a dane w nich zawarte mają jedynie charakter informacyjny.
Szczegóły
Typ nieruchomości:
mieszkanie na sprzedaż
Dodano:
2024-06-27 10:40:04
Ostatnia aktualizacja:
2024-07-17 15:48:02
Powierzchnia:
42,38 m²
Cena:
561 122 zł.
Cena za m²:
13 240,25 zł.
Piętro:
2 / 2
Liczba pokoi:
2
Lokalizacja:
Polska, dolnośląskie, Wrocław, Krzyki
Rok budowy:
2022
Typ budynku:
blok
Material budowlany:
bloczki
Stan budynku:
bardzo dobry
Stan nieruchomości:
bez białego montażu i podłóg
Ogrzewanie:
Tak
Miejsca parkingowe:
parking podziemny
Umeblowanie pomieszczeń:
Nie
Agent prowadzący:
Anna Kamuda
Wysokość pomieszczeń:
270
Balkon:
Tak
Taras:
Nie
Piwnica:
Nie
Piecyk gazowy:
Nie
Wyposażenie kuchni:
Nie
Osiedle zamknięte:
Nie
Zwolnienie z prowizji:
Tak
Forma własności:
własność
Klimatyzacja:
Nie
Powierzchnia balkonu:
4,11
Powierzchnia łazienki:
4,03
Liczba łazienek:
1
Domofon:
Tak
Liczba miejsc parkingowych:
1
Łazienka / wc:
Tak
Winda:
Tak
Kuchnia:
aneks
Pośrednik:
Elitare Nieruchomości
Nr ogłoszenia:
klikmapa-1150407