klikmapa.pl/o/warszawa-bemowo-730-000-zl-40-m2-umeblowane-id1309130.html
Nr ogłoszenia: klikmapa-1309130 (aby przejść do tego ogłoszenia wpisz klikmapa-1309130 w wyszukiwarce na klikmapa.pl)
Warszawa Bemowo, 730 000 zł, 40 m2, umeblowane
730 000zł
18 250zł/m²
40 m²
2 pok.piętro: 1
/3
POLSKA, MAZOWIECKIE, WARSZAWA, BEMOWO, Dywizjonu 303
Opis
Ładne 2 pokoje, bliskość stacji tramwajowej. WAT
Na sprzedaż 2-pokojowe mieszkanie | Dywizjonu 303 | | Blisko Wojskowej Akademii Technicznej WAT
Szukasz mieszkania w świetnej lokalizacji, z pięknym widokiem i pełną infrastrukturą? Ta oferta jest dla Ciebie! Lokalizacja: Warszawa, ul. Dywizionu 303 nr budynku 155 ,. Doskonała komunikacja i dostęp do sklepów, usług i terenów zielonych.
Budynek i mieszkanie:
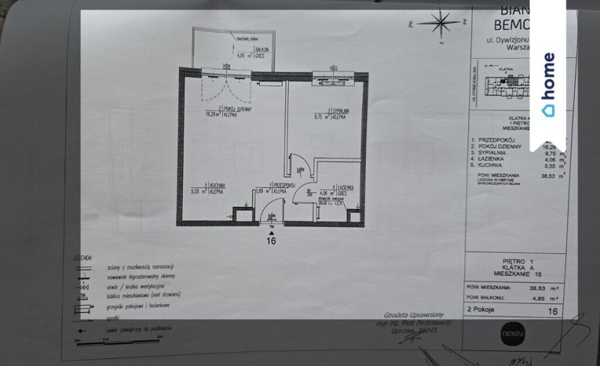
Powierzchnia: 38,5 m²
Piętro: 1/3 (z windą)
Rok budowy: 2015
Typ budynku: blok z cegły
Osiedle: zamknięte i strzeżone
Czynsz: tylko 550 zł
Balkon z widokiem na panoramę miasta – niska zabudowa w okolicy gwarantują piękne widoki i prywatnośćDo mieszkania przynależy miejsce postojowe w garażu podziemnym (dodatkowo plątne 30 000zł)
Układ i standard:
2 pokoje
Aneks kuchenny
1 łazienkaMieszkanie wykończone, gotowe do zamieszkania
Media i udogodnienia:
Ogrzewanie i ciepła woda z sieci miejskiej
Internet, telefon, telewizja
Pełna własność z księgą wieczystą
Zabezpieczenia antywłamaniowe
To idealna propozycja zarówno do zamieszkania, jak i jako inwestycja pod wynajem
Zadzwoń i umów się na prezentację – mieszkanie dostępne od zaraz!
For sale 2-room apartment | Dywizjonu 303 | | Near the Military University of Technology WAT
Are you looking for an apartment in a great location, with a beautiful view and full infrastructure? This offer is for you! Location: Warsaw, ul. Dywizjonu 303 building no. 155,. Excellent communication and access to shops, services and green areas.
Building and apartment:
Area: 38.5 m²
Floor: 1/3 (with elevator)
Year of construction: 2015
Building type: brick block
Housing estate: gated and guarded
Rent: only 550 PLN
Balcony with a view of the city skyline - the low buildings in the area guarantee beautiful views and privacy The apartment includes a parking space in the underground garage (additional fee PLN 30,000)
Layout and standard:
2 rooms
Kitchenette
1 bathroom The apartment is finished and ready to move in
Utilities and amenities:
Heating and hot water from the city network
Internet, telephone, television
Full ownership with land and mortgage register
Anti-burglary protection
This is an ideal proposition both for living and as an investment for rent.
Call and arrange a viewing – the apartment is available immediately!
Oferta wysłana z programu dla biur nieruchomości ASARI CRM (asaricrm.com)
Szukasz mieszkania w świetnej lokalizacji, z pięknym widokiem i pełną infrastrukturą? Ta oferta jest dla Ciebie! Lokalizacja: Warszawa, ul. Dywizionu 303 nr budynku 155 ,. Doskonała komunikacja i dostęp do sklepów, usług i terenów zielonych.
Budynek i mieszkanie:
Powierzchnia: 38,5 m²
Piętro: 1/3 (z windą)
Rok budowy: 2015
Typ budynku: blok z cegły
Osiedle: zamknięte i strzeżone
Czynsz: tylko 550 zł
Balkon z widokiem na panoramę miasta – niska zabudowa w okolicy gwarantują piękne widoki i prywatnośćDo mieszkania przynależy miejsce postojowe w garażu podziemnym (dodatkowo plątne 30 000zł)
Układ i standard:
2 pokoje
Aneks kuchenny
1 łazienkaMieszkanie wykończone, gotowe do zamieszkania
Media i udogodnienia:
Ogrzewanie i ciepła woda z sieci miejskiej
Internet, telefon, telewizja
Pełna własność z księgą wieczystą
Zabezpieczenia antywłamaniowe
To idealna propozycja zarówno do zamieszkania, jak i jako inwestycja pod wynajem
Zadzwoń i umów się na prezentację – mieszkanie dostępne od zaraz!
For sale 2-room apartment | Dywizjonu 303 | | Near the Military University of Technology WAT
Are you looking for an apartment in a great location, with a beautiful view and full infrastructure? This offer is for you! Location: Warsaw, ul. Dywizjonu 303 building no. 155,. Excellent communication and access to shops, services and green areas.
Building and apartment:
Area: 38.5 m²
Floor: 1/3 (with elevator)
Year of construction: 2015
Building type: brick block
Housing estate: gated and guarded
Rent: only 550 PLN
Balcony with a view of the city skyline - the low buildings in the area guarantee beautiful views and privacy The apartment includes a parking space in the underground garage (additional fee PLN 30,000)
Layout and standard:
2 rooms
Kitchenette
1 bathroom The apartment is finished and ready to move in
Utilities and amenities:
Heating and hot water from the city network
Internet, telephone, television
Full ownership with land and mortgage register
Anti-burglary protection
This is an ideal proposition both for living and as an investment for rent.
Call and arrange a viewing – the apartment is available immediately!
Oferta wysłana z programu dla biur nieruchomości ASARI CRM (asaricrm.com)
Szczegóły
Typ nieruchomości:
mieszkanie na sprzedaż
Dodano:
2025-06-27 10:34:02
Ostatnia aktualizacja:
2025-07-09 09:11:02
Powierzchnia:
40 m²
Cena:
730 000 zł.
Cena za m²:
18 250 zł.
Piętro:
1 / 3
Liczba pokoi:
2
Lokalizacja:
POLSKA, MAZOWIECKIE, WARSZAWA, BEMOWO, Dywizjonu 303
Rok budowy:
2015
Wysokość czynszu:
550
Rodzaj mieszkania:
2-POKOJOWE
Typ kuchni:
ANEKS KUCHENNY
Dostępne inst. w budynku:
WINDA OSOBOWA
Zabezpieczenia:
OSIEDLE ZAMKNIĘTE, MONITORING, DOMOFON
Forma własności działki:
WŁASNOŚĆ
Rodzaj budynku:
NISKI BLOK
Standard:
WYSOKI STANDARD
Umeblowanie:
TAK
Przynależne:
GARAŻ
Źródło c.w.:
SIEĆ MIEJSKA
Ogrzewanie:
C.O. Z SIECI MIEJSKIEJ
Dodatkowe:
BALKON
Forma własności:
WŁASNOŚĆ
Typ umowy pośrednictwa:
WYŁĄCZNOŚĆ
Agent:
Krzysztof Zieliński
Oferta specjalna:
NIE
Oferta własna:
TAK
Rynek:
WTÓRNY
Pośrednik:
Home sp. z o.o.
Nr ogłoszenia:
klikmapa-1309130