klikmapa.pl/o/trabki-3-960-000-zl-420-m2-ogrzewanie-gazowe-id1308706.html
Nr ogłoszenia: klikmapa-1308706 (aby przejść do tego ogłoszenia wpisz klikmapa-1308706 w wyszukiwarce na klikmapa.pl)
Trąbki, 3 960 000 zł, 420 m2, ogrzewanie gazowe
Ogłoszenie archiwalne
3 960 000zł
9 429zł/m²
420 m²
9 pok.
małopolskie, wielicki, Biskupice (gw), Trąbki, Trąbki, Trąbki
Opis
Rezydencja 420m2, 28 arów, 8 pokoji
|
Mam przyjemność zaprezentować Państwu wyjątkowy dom o charakterze rezydencjalnym, wyróżniający się niepowtarzalnym stylem i klimatem. Nieruchomość o powierzchni 420 m², położona na 28-arowej działce, oferuje piękny, zadbany ogród.
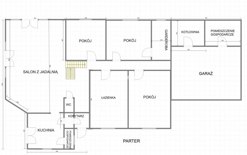
Na parterze, o powierzchni 200 m², znajdą Państwo:
przestronny salon z jadalnią, z wyjściem na taras i do ogrodu,
oddzielną, w pełni wyposażoną kuchnię,
dwie spiżarnie,
toaletę dla gości,
łazienkę z kabiną prysznicową oraz wanną z jacuzzi,
trzy oddzielne sypialnie,
obszerny hall.
Piętro obejmuje:
antresolę pełniącą funkcję salonu,
trzy sypialnie, w tym jedną z prywatną garderobą,
przestronny pokój kąpielowy,
pokój kinowy połączony z domową siłownią.
Dodatkowo dom posiada:
podwójny garaż o powierzchni 56 m², z kotłownią i dodatkowym magazynem.
Dom, wybudowany w 2008 roku z wysokiej jakości materiałów, jest stale utrzymywany w doskonałym stanie i regularnie modernizowany. Ogrzewanie podłogowe na całej powierzchni domu zapewnia znaczne oszczędności w sezonie grzewczym. Wszystkie pomieszczenia są duże, przestronne i doskonale doświetlone.
Nieruchomość znajduje się w spokojnej, zielonej okolicy, zaledwie 7 minut od centrum Wieliczki. Bliska odległość do autostrady A4 gwarantuje doskonałą komunikację z Krakowem.
Zapraszam na prezentację!
Arkadiusz Zemła
Tel.: 518 706 552
E-mail: arek@sadurscy.pl
I am pleased to present to you an exceptional residential property, distinguished by its unique style and atmosphere. This 420 m² property, situated on a 28-are plot, offers a beautiful, well-maintained garden.
On the ground floor, covering 200 m², you will find:
A spacious living room with a dining area, with access to the terrace and garden,
A separate, fully equipped kitchen,
Two pantries,
A guest toilet,
A bathroom with a shower cabin and a Jacuzzi bathtub,
Three separate bedrooms,
A large hall.
The first floor includes:
A mezzanine serving as a living room,
Three bedrooms, one of which has a private walk-in closet,
A spacious bathroom,
A home cinema room connected to a gym.
Additionally, the house features:
A double garage with an area of 56 m², including a boiler room and an extra storage space.
The house, built in 2008 with high-quality materials, is consistently maintained in excellent condition and regularly updated. Underfloor heating throughout the house ensures significant savings during the heating season. All rooms are large, spacious, and well-lit.
The property is located in a peaceful, green area, just 7 minutes from the center of Wieliczka. The close proximity to the A4 highway guarantees excellent communication with Kraków.
I invite you for a viewing!
Arkadiusz Zemła
Tel.: +48 518 706 552
E-mail: arek@sadurscy.pl
::DODATKOWE INFORMACJE |
Kategoria oferty: Mieszkania dla rodzin z dziećmi |
Prąd: jest |
Gaz: jest |
Woda: ciepła - piecyk gazowy |
Dojazd: ASFALTOWA |
Otoczenie: zabudowa jednorodzinna |
Ogrzewanie: C.O. GAZOWE,KOMINEK |
Kanalizacja: tak |
Alarm: TAK |
Internet: TAK |
Komunikacja publ.: autobus podmiejski |
Odległość do komunikacji publicznej [m]: 450 |
Odl. do sklepu [m]: 500 |
Odl. do szkoły [m]: 1000 |
Odl. do przedszkola [m]: 1000 |
Drzwi antywłamaniowe: TAK |
Teren ogrodzony: TAK |
Okna: drewniane |
Instalacje: ELEKTRYCZNA, GAZOWA |
Balkon: jest |
Liczba balkonów: 1 |
Tarasy: taras duży |
Powierzchnia ogródka [m2]: 2800 |
Zagosp. działki: zagospodarowana |
Ukształtowanie działki: płaska |
Kształt działki: kwadrat |
Rodzaj domu: wolnostojący |
Stan wybudowania: Pod klucz |
Typ elewacji: tynk zwykły |
Podst. materiał budowlany: pustak |
Pokrycie dachu: dachówka |
Powierzchnia użytkowa [m2]: 420 |
Stan budynku: BARDZO WYSOKI STANDARD |
Podpiwniczenie: nie |
Garaż: dwustanowiskowy |
Ogrodzenie działki: ogrodzona |
Rok budowy: 2008 |
Liczba pokoi: 9 |
Wysokość pomieszczeń [m]: 2,6000 |
Liczba sypialni: 6 |
Podłogi pokoi: panele podłogowe |
Ściany pokoi: zwykłe |
Wystawa okien - pokoje : Zach, Wsch, Pd, Pn |
Typ kuchni: jasna z oknem |
Rodzaj kuchni: kuchnia jasna, osobno |
Podłoga kuchni: gres |
Typ łazienki: razem z wc |
Liczba łazienek: 2 |
Glazura łazienki: glazura |
Podłoga łazienki: gres |
Wyposażenie łazienki: WC, wanna, umywalka, lustro, kabina prysznicowa |
Ściany łazienki: glazura |
Liczba WC: 2 |
Glazura WC: nowego typu |
Podłoga WC: gres |
Ściany WC: glazura |
Liczba przedpokoi: 2 |
Podłoga przedpokoi: panele podłogowe |
Ściany przedpokoi: zwykłe |
::LINK DO STRONY |
https://sadurscy.pl/offer/BS2-DS-306979
Zobacz Wirtualny Spacer: https://my.matterport.com/show/?m=eJv7DTGDt54
::KONTAKT DO AGENTA |
Arkadiusz Zemła |
+48 518-706-552 |
arek@sadurscy.pl
::DANE BIURA |
Oddział BS2, Rynek Pierwotny |
Przewóz 47 |
30-081 Kraków |
12 630-90-45
--------------------------
::GRATIS | Nasza prowizja zawiera: koszt przedwstępnej notarialnej umowy sprzedaży nieruchomości z rynku wtórnego.
::GWARANCJA | Gwarancja zwrotu zadatku. Więcej informacji na sadurscy.pl/zwrot-zadatku/
|
Oferta wysłana z systemu Galactica Virgo
Mam przyjemność zaprezentować Państwu wyjątkowy dom o charakterze rezydencjalnym, wyróżniający się niepowtarzalnym stylem i klimatem. Nieruchomość o powierzchni 420 m², położona na 28-arowej działce, oferuje piękny, zadbany ogród.
Na parterze, o powierzchni 200 m², znajdą Państwo:
przestronny salon z jadalnią, z wyjściem na taras i do ogrodu,
oddzielną, w pełni wyposażoną kuchnię,
dwie spiżarnie,
toaletę dla gości,
łazienkę z kabiną prysznicową oraz wanną z jacuzzi,
trzy oddzielne sypialnie,
obszerny hall.
Piętro obejmuje:
antresolę pełniącą funkcję salonu,
trzy sypialnie, w tym jedną z prywatną garderobą,
przestronny pokój kąpielowy,
pokój kinowy połączony z domową siłownią.
Dodatkowo dom posiada:
podwójny garaż o powierzchni 56 m², z kotłownią i dodatkowym magazynem.
Dom, wybudowany w 2008 roku z wysokiej jakości materiałów, jest stale utrzymywany w doskonałym stanie i regularnie modernizowany. Ogrzewanie podłogowe na całej powierzchni domu zapewnia znaczne oszczędności w sezonie grzewczym. Wszystkie pomieszczenia są duże, przestronne i doskonale doświetlone.
Nieruchomość znajduje się w spokojnej, zielonej okolicy, zaledwie 7 minut od centrum Wieliczki. Bliska odległość do autostrady A4 gwarantuje doskonałą komunikację z Krakowem.
Zapraszam na prezentację!
Arkadiusz Zemła
Tel.: 518 706 552
E-mail: arek@sadurscy.pl
I am pleased to present to you an exceptional residential property, distinguished by its unique style and atmosphere. This 420 m² property, situated on a 28-are plot, offers a beautiful, well-maintained garden.
On the ground floor, covering 200 m², you will find:
A spacious living room with a dining area, with access to the terrace and garden,
A separate, fully equipped kitchen,
Two pantries,
A guest toilet,
A bathroom with a shower cabin and a Jacuzzi bathtub,
Three separate bedrooms,
A large hall.
The first floor includes:
A mezzanine serving as a living room,
Three bedrooms, one of which has a private walk-in closet,
A spacious bathroom,
A home cinema room connected to a gym.
Additionally, the house features:
A double garage with an area of 56 m², including a boiler room and an extra storage space.
The house, built in 2008 with high-quality materials, is consistently maintained in excellent condition and regularly updated. Underfloor heating throughout the house ensures significant savings during the heating season. All rooms are large, spacious, and well-lit.
The property is located in a peaceful, green area, just 7 minutes from the center of Wieliczka. The close proximity to the A4 highway guarantees excellent communication with Kraków.
I invite you for a viewing!
Arkadiusz Zemła
Tel.: +48 518 706 552
E-mail: arek@sadurscy.pl
::DODATKOWE INFORMACJE |
Kategoria oferty: Mieszkania dla rodzin z dziećmi |
Prąd: jest |
Gaz: jest |
Woda: ciepła - piecyk gazowy |
Dojazd: ASFALTOWA |
Otoczenie: zabudowa jednorodzinna |
Ogrzewanie: C.O. GAZOWE,KOMINEK |
Kanalizacja: tak |
Alarm: TAK |
Internet: TAK |
Komunikacja publ.: autobus podmiejski |
Odległość do komunikacji publicznej [m]: 450 |
Odl. do sklepu [m]: 500 |
Odl. do szkoły [m]: 1000 |
Odl. do przedszkola [m]: 1000 |
Drzwi antywłamaniowe: TAK |
Teren ogrodzony: TAK |
Okna: drewniane |
Instalacje: ELEKTRYCZNA, GAZOWA |
Balkon: jest |
Liczba balkonów: 1 |
Tarasy: taras duży |
Powierzchnia ogródka [m2]: 2800 |
Zagosp. działki: zagospodarowana |
Ukształtowanie działki: płaska |
Kształt działki: kwadrat |
Rodzaj domu: wolnostojący |
Stan wybudowania: Pod klucz |
Typ elewacji: tynk zwykły |
Podst. materiał budowlany: pustak |
Pokrycie dachu: dachówka |
Powierzchnia użytkowa [m2]: 420 |
Stan budynku: BARDZO WYSOKI STANDARD |
Podpiwniczenie: nie |
Garaż: dwustanowiskowy |
Ogrodzenie działki: ogrodzona |
Rok budowy: 2008 |
Liczba pokoi: 9 |
Wysokość pomieszczeń [m]: 2,6000 |
Liczba sypialni: 6 |
Podłogi pokoi: panele podłogowe |
Ściany pokoi: zwykłe |
Wystawa okien - pokoje : Zach, Wsch, Pd, Pn |
Typ kuchni: jasna z oknem |
Rodzaj kuchni: kuchnia jasna, osobno |
Podłoga kuchni: gres |
Typ łazienki: razem z wc |
Liczba łazienek: 2 |
Glazura łazienki: glazura |
Podłoga łazienki: gres |
Wyposażenie łazienki: WC, wanna, umywalka, lustro, kabina prysznicowa |
Ściany łazienki: glazura |
Liczba WC: 2 |
Glazura WC: nowego typu |
Podłoga WC: gres |
Ściany WC: glazura |
Liczba przedpokoi: 2 |
Podłoga przedpokoi: panele podłogowe |
Ściany przedpokoi: zwykłe |
::LINK DO STRONY |
https://sadurscy.pl/offer/BS2-DS-306979
Zobacz Wirtualny Spacer: https://my.matterport.com/show/?m=eJv7DTGDt54
::KONTAKT DO AGENTA |
Arkadiusz Zemła |
+48 518-706-552 |
arek@sadurscy.pl
::DANE BIURA |
Oddział BS2, Rynek Pierwotny |
Przewóz 47 |
30-081 Kraków |
12 630-90-45
--------------------------
::GRATIS | Nasza prowizja zawiera: koszt przedwstępnej notarialnej umowy sprzedaży nieruchomości z rynku wtórnego.
::GWARANCJA | Gwarancja zwrotu zadatku. Więcej informacji na sadurscy.pl/zwrot-zadatku/
|
Oferta wysłana z systemu Galactica Virgo
Szczegóły
Typ nieruchomości:
dom na sprzedaż
Dodano:
2025-06-26 19:14:31
Ostatnia aktualizacja:
2025-08-11 13:43:02
Powierzchnia:
420 m²
Cena:
3 960 000 zł.
Cena za m²:
9 428,57 zł.
Liczba pokoi:
9
Lokalizacja:
małopolskie, wielicki, Biskupice (gw), Trąbki, Trąbki, Trąbki
Rok budowy:
2008
Typ nieruchomości:
wolnostojący
Material budowlany:
pustak
Stan budynku:
BARDZO WYSOKI STANDARD
Ogrzewanie:
C.O. GAZOWE,KOMINEK
Podłączenie wody:
ciepła - piecyk gazowy
Gaz:
jest
Agent prowadzący:
Arkadiusz Zemła
Wysokość pomieszczeń:
260
Balkon:
Tak
Taras:
Tak
Internet:
Tak
Wyłączność:
Nie
Zwolnienie z prowizji:
Nie
Forma własności:
Własność
Powierzchnia działki:
2800
Liczba łazienek:
2
Stolarka okienna:
drewniane
Energia elektryczna:
Tak
Kanalizacja:
tak
Łazienka / wc:
Tak
Typ dachu:
dachówka
Ogrodzenie:
ogrodzona
Droga dojazdowa:
ASFALTOWA
Kuchnia:
jasna z oknem
Liczba sypialni:
6
Pośrednik:
Agencja Nieruchomości Bracia Sadurscy
Nr ogłoszenia:
klikmapa-1308706