klikmapa.pl/o/tarnow-zablocie-651-955-zl-7252-m2-parter2-id1312657.html
Nr ogłoszenia: klikmapa-1312657 (aby przejść do tego ogłoszenia wpisz klikmapa-1312657 w wyszukiwarce na klikmapa.pl)
Tarnów Zabłocie, 651 955 zł, 72.52 m2, parter/2
Ogłoszenie archiwalne
651 955zł
8 990zł/m²
72,52 m²
4 pok.
małopolskie, Tarnów m., Tarnów, Zabłocie, Skrzyszowska
Opis
Nowa Pradolina mieszkaniez 2 poziomowe
|
Komfortowe, dwupoziomowe mieszkanie z ogródkiem i miejsce postojowym - idealne dla rodziny o pow. 72,52 m² | Tarnów, ul. Skrzyszowska, Osiedle „Nowa Pradolina”
Przedsprzedaż ruszyła!
Na sprzedaż przestronne, dwupoziomowe mieszkanie o powierzchni 72,52 m², położone na parterze i 1. piętrze nowoczesnego osiedla „Nowa Pradolina” w Tarnowie. Do mieszkania przynależy prywatny ogródek z komórką narzędziową o powierzchni 35,90 m² , idealny do rekreacji i odpoczynku.
Rozkład pomieszczeń:
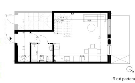
Parter:
Salon z aneksem kuchennym: 25,62 m²
Łazienka: 4,05 m²
Wiatrołap i przedpokój
Ogródek z komórką narzędziową: 35,90 m²
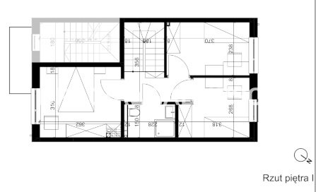
Piętro:
Pokój 1: 11,24 m²
Pokój 2: 8,62 m²
Pokój 3: 7,57 m²
Druga łazienka: 3,31 m²
Przedpokój
Najważniejsze atuty:
Miejsce postojowe w cenie
Ogrzewanie podłogowe z piecem gazowym dwufunkcyjnym
Trzyszybowe okna zapewniające doskonałą izolację
Możliwość montażu instalacji fotowoltaicznej
Budynki w technologii tradycyjnej, ściany z bloczków silikatowych, ocieplone wełną mineralną lub styropianem
Możliwość wykończenia mieszkania „pod klucz” zgodnie z prezentowanym standardem
Nowoczesne, ogrodzone i monitorowane osiedle z oświetleniem i strefą rekreacyjną nad strumieniem
Zachowany starodrzew, nowe nasadzenia, ogrody deszczowe wzdłuż chodników
Lokalizacja i okolica:
Zielona, spokojna okolica w sąsiedztwie terenów rekreacyjnych
Szybki dojazd do centrum Tarnowa oraz autostrady A4
Centrum usług na terenie osiedla - większość spraw załatwisz bez wychodzenia poza osiedle
Dla rodzin i dzieci: plac zabaw, ścieżki spacerowe i rowerowe w środku lasku
Szybki dojazd do centrum Tarnowa (8 min), dworca PKP (12 min) i Krakowa (60 min)
Dodatkowe informacje:
Planowany termin zakończenia I etapu inwestycji: III kwartał 2026 r.
Pomoc doradcy kredytowego na miejscu
Zapraszamy do kontaktu i na prezentację!
Nie przegap okazji - skorzystaj z oferty przedsprzedażowej i wybierz wymarzone mieszkanie na zielonym, nowoczesnym osiedlu w Tarnowie.
Szczegóły oferty:
798 352 683
marek3@sadurscy.pl
::DODATKOWE INFORMACJE |
Rodzaj budynku: apartamentowiec |
Dozór budynku: monitoring |
Głośność: ciche |
Widok: park/skwer |
Gaz: tak - miejski |
Woda: piec gazowy dwufunkcyjny |
Dojazd: asfaltowa/kostka |
Otoczenie: zabudowa mieszana |
Ogrzewanie: piec dwufunkcyjny |
Komunikacja publ.: autobus miejski |
Rozkład: rozkładowe |
Usytuowanie: dwustronne |
Naziemn. miejsc parking.: 1 |
Teren ogrodzony: TAK |
Rodzaj mieszkania: dwupoziomowe |
Garaż: miejsce postojowe przed budynkiem |
Stan lokalu: deweloperski |
Okna: PCV 3 szyby, ciepły montaż |
Instalacje: nowe |
Tarasy: taras duży |
Liczba tarasów: 1 |
Powierzchnia balkonów/tarasów [m2]: 7 |
Powierzchnia ogródka [m2]: 35,9000 |
Powierzchnia użytkowa [m2]: 72,5200 |
Rok budowy: 2025 |
Liczba pokoi: 4 |
Wysokość pomieszczeń [m]: 2,6000 |
Liczba sypialni: 3 |
Powierzchnia pokoi [m2]: 25,62; 11,24; 7,57; 8,62 |
Podłogi pokoi: wylewka |
Ściany pokoi: tynk |
Typ kuchni: aneks kuchenny - połączony z salonem |
Podłoga kuchni: wylewka |
Liczba łazienek: 2 |
Powierzchnia łazienki [m2]: 4,05; 3,31 |
Ściany łazienki: zwykłe |
Powierzchnia przedpokoi [m2]: 3,84, 2,81; 5,46 |
Podłoga przedpokoi: wylewka |
Ściany przedpokoi: tynk |
::LINK DO STRONY |
https://sadurscy.pl/offer/BS5-MS-310454
::KONTAKT DO AGENTA |
Marek Wawrzeń |
+48 798-352-683 |
marek3@sadurscy.pl
::DANE BIURA |
Oddział BS5, Nowa Huta |
Bracia Sadurscy Dariusz Sadurski |
Os. Kazimierzowskie 36 |
31-844 Kraków |
12 265 10 29
Pośrednik odpowiedzialny zawodowo za wykonanie umowy pośrednictwa: Marek Wawrzeń (licencja nr: 26458)
|
Oferta wysłana z systemu Galactica Virgo
Komfortowe, dwupoziomowe mieszkanie z ogródkiem i miejsce postojowym - idealne dla rodziny o pow. 72,52 m² | Tarnów, ul. Skrzyszowska, Osiedle „Nowa Pradolina”
Przedsprzedaż ruszyła!
Na sprzedaż przestronne, dwupoziomowe mieszkanie o powierzchni 72,52 m², położone na parterze i 1. piętrze nowoczesnego osiedla „Nowa Pradolina” w Tarnowie. Do mieszkania przynależy prywatny ogródek z komórką narzędziową o powierzchni 35,90 m² , idealny do rekreacji i odpoczynku.
Rozkład pomieszczeń:
Parter:
Salon z aneksem kuchennym: 25,62 m²
Łazienka: 4,05 m²
Wiatrołap i przedpokój
Ogródek z komórką narzędziową: 35,90 m²
Piętro:
Pokój 1: 11,24 m²
Pokój 2: 8,62 m²
Pokój 3: 7,57 m²
Druga łazienka: 3,31 m²
Przedpokój
Najważniejsze atuty:
Miejsce postojowe w cenie
Ogrzewanie podłogowe z piecem gazowym dwufunkcyjnym
Trzyszybowe okna zapewniające doskonałą izolację
Możliwość montażu instalacji fotowoltaicznej
Budynki w technologii tradycyjnej, ściany z bloczków silikatowych, ocieplone wełną mineralną lub styropianem
Możliwość wykończenia mieszkania „pod klucz” zgodnie z prezentowanym standardem
Nowoczesne, ogrodzone i monitorowane osiedle z oświetleniem i strefą rekreacyjną nad strumieniem
Zachowany starodrzew, nowe nasadzenia, ogrody deszczowe wzdłuż chodników
Lokalizacja i okolica:
Zielona, spokojna okolica w sąsiedztwie terenów rekreacyjnych
Szybki dojazd do centrum Tarnowa oraz autostrady A4
Centrum usług na terenie osiedla - większość spraw załatwisz bez wychodzenia poza osiedle
Dla rodzin i dzieci: plac zabaw, ścieżki spacerowe i rowerowe w środku lasku
Szybki dojazd do centrum Tarnowa (8 min), dworca PKP (12 min) i Krakowa (60 min)
Dodatkowe informacje:
Planowany termin zakończenia I etapu inwestycji: III kwartał 2026 r.
Pomoc doradcy kredytowego na miejscu
Zapraszamy do kontaktu i na prezentację!
Nie przegap okazji - skorzystaj z oferty przedsprzedażowej i wybierz wymarzone mieszkanie na zielonym, nowoczesnym osiedlu w Tarnowie.
Szczegóły oferty:
798 352 683
marek3@sadurscy.pl
::DODATKOWE INFORMACJE |
Rodzaj budynku: apartamentowiec |
Dozór budynku: monitoring |
Głośność: ciche |
Widok: park/skwer |
Gaz: tak - miejski |
Woda: piec gazowy dwufunkcyjny |
Dojazd: asfaltowa/kostka |
Otoczenie: zabudowa mieszana |
Ogrzewanie: piec dwufunkcyjny |
Komunikacja publ.: autobus miejski |
Rozkład: rozkładowe |
Usytuowanie: dwustronne |
Naziemn. miejsc parking.: 1 |
Teren ogrodzony: TAK |
Rodzaj mieszkania: dwupoziomowe |
Garaż: miejsce postojowe przed budynkiem |
Stan lokalu: deweloperski |
Okna: PCV 3 szyby, ciepły montaż |
Instalacje: nowe |
Tarasy: taras duży |
Liczba tarasów: 1 |
Powierzchnia balkonów/tarasów [m2]: 7 |
Powierzchnia ogródka [m2]: 35,9000 |
Powierzchnia użytkowa [m2]: 72,5200 |
Rok budowy: 2025 |
Liczba pokoi: 4 |
Wysokość pomieszczeń [m]: 2,6000 |
Liczba sypialni: 3 |
Powierzchnia pokoi [m2]: 25,62; 11,24; 7,57; 8,62 |
Podłogi pokoi: wylewka |
Ściany pokoi: tynk |
Typ kuchni: aneks kuchenny - połączony z salonem |
Podłoga kuchni: wylewka |
Liczba łazienek: 2 |
Powierzchnia łazienki [m2]: 4,05; 3,31 |
Ściany łazienki: zwykłe |
Powierzchnia przedpokoi [m2]: 3,84, 2,81; 5,46 |
Podłoga przedpokoi: wylewka |
Ściany przedpokoi: tynk |
::LINK DO STRONY |
https://sadurscy.pl/offer/BS5-MS-310454
::KONTAKT DO AGENTA |
Marek Wawrzeń |
+48 798-352-683 |
marek3@sadurscy.pl
::DANE BIURA |
Oddział BS5, Nowa Huta |
Bracia Sadurscy Dariusz Sadurski |
Os. Kazimierzowskie 36 |
31-844 Kraków |
12 265 10 29
Pośrednik odpowiedzialny zawodowo za wykonanie umowy pośrednictwa: Marek Wawrzeń (licencja nr: 26458)
|
Oferta wysłana z systemu Galactica Virgo
Szczegóły
Typ nieruchomości:
mieszkanie na sprzedaż
Dodano:
2025-07-03 21:50:03
Ostatnia aktualizacja:
2025-07-16 13:34:01
Powierzchnia:
72,52 m²
Cena:
651 955 zł.
Cena za m²:
8 990 zł.
Liczba pokoi:
4
Lokalizacja:
małopolskie, Tarnów m., Tarnów, Zabłocie, Skrzyszowska
Rok budowy:
2025
Typ budynku:
apartamentowiec
Material budowlany:
silikat
Stan nieruchomości:
deweloperski
Ogrzewanie:
piec dwufunkcyjny
Miejsca parkingowe:
miejsce postojowe przed budynkiem
Agent prowadzący:
Marek Wawrzeń
Licencja pośrednika:
26458
Wysokość pomieszczeń:
260
Dwupoziomowe:
Tak
Taras:
Tak
Wyłączność:
Nie
Zwolnienie z prowizji:
Tak
Forma własności:
Odrębna własność lokalu
Powierzchnia balkonu:
7
Powierzchnia łazienki:
4,05
Liczba łazienek:
2
Stolarka okienna:
PCV 3 szyby, ciepły montaż
Liczba miejsc parkingowych:
1
Kuchnia:
aneks kuchenny - połączony z salonem
Liczba sypialni:
3
Pośrednik:
Agencja Nieruchomości Bracia Sadurscy
Nr ogłoszenia:
klikmapa-1312657