klikmapa.pl/o/szczecin-warszewo-599-000-zl-5519-m2-umeblowane-id1206112.html
Nr ogłoszenia: klikmapa-1206112 (aby przejść do tego ogłoszenia wpisz klikmapa-1206112 w wyszukiwarce na klikmapa.pl)
Szczecin Warszewo, 599 000 zł, 55.19 m2, umeblowane
Ogłoszenie archiwalne
599 000zł
10 853zł/m²
55,19 m²
2 pok.piętro: 1
/2
POLSKA, ZACHODNIOPOMORSKIE, SZCZECIN, WARSZEWO, Maciejkowa
Opis
Warszewo, 2 pokojowe z klimatyzacją i garażem
Fantastyczne, gustownie wykończone mieszkanie zlokalizowane na kameralnym osiedlu Zielona Przystań na Warszewie przy ul. Maciejkowej – zaledwie 400 metrów od Puszczy Wkrzańskiej. Mieszkanie jest świetnie skomunikowane z centrum miasta. 100 m od budynku znajduje się przystanek autobusowy linii 87 (połączenie z Kołłątaja, Urząd Miasta, Plac Grunwaldzki, Brama Portowa, Dworzec Główny). W sąsiedztwie znajduje się sklep spożywczy, apteka, gabinety medyczne, przychodnia, kawiarnia, czy gabinet kosmetyczny - na miejscu można znaleźć wszystko co potrzebne do codziennego funkcjonowania. W odległości ok. 500 m od budynku znajduje się nowobudowana szkoła i przedszkole (termin rozpoczęcia świadczeń - IX 2024 r.).
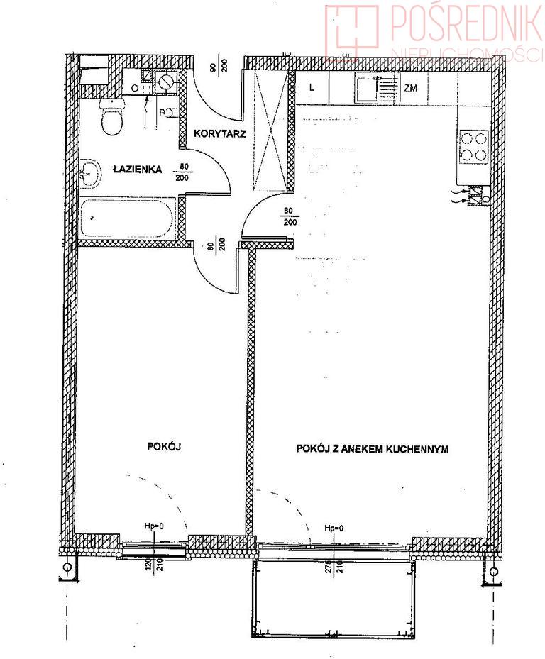
Lokal znajduje się na 1 piętrze dwupiętrowego budynku z 2013 roku i ma 55,19m2 powierzchni użytkowej i składa się z następujących pomieszczeń:
salonu wraz z aneksem kuchennym - 24,82m2 +7,07m2 z wyjściem na balkon 4,03m2
pokoju / sypialni - 14,96m2
łazienki - 4,20m2
przedpokoju 4,14m2
Niewątpliwym atutem apartamentu jest to, iż jest on klimatyzowany w systemie multisplit – salon z aneksem kuchennym oraz sypialnia, co pozwala na niezależne dostosowanie temperatury pomieszczeń. Standard wykończenia pozwala na zamieszkanie bez konieczności przeprowadzania jakichkolwiek remontów.
W przedpokoju znajdują się zabudowane szafy. W całości wydzielonej kuchni zamontowane są meble na wymiar, które maksymalizują przestrzeń do przechowywania. W mieszkaniu zamontowano bardzo duże okna balkonowe, dzięki czemu jest ono widne i ciepłe.
Mieszkanie charakteryzuje się bardzo niskimi kosztami ogrzewania - rachunki za gaz (CO i CWU) (roczne zużycie gazu - ok. 300 m3; temperatura w lokalu w okresie grzewczym - 21 stopni).
Wysokość czynszu za lokal mieszkalny – wraz z funduszem remontowym, bez mediów – wynosi jedynie 144,84 zł miesięcznie (za mieszkanie) i 71,05 (za garaż ). Całe umeblowanie mieszkania pozostaje w cenie.
Istnieje możliwość wykupienia miejsca postojowego w garażu podziemnym. Za miejscem postojowym znajduje się duża komórka lokatorska - 6,5 m2 (cena miejsca postojowego wraz z komórką – 70.000 zł).
Możliwe szybkie wydanie nieruchomości.
Polecamy i zapraszamy na prezentację.
www.posredniknieruchomosci.pl
Oferta wysłana z programu dla biur nieruchomości ASARI CRM (asaricrm.com)
Lokal znajduje się na 1 piętrze dwupiętrowego budynku z 2013 roku i ma 55,19m2 powierzchni użytkowej i składa się z następujących pomieszczeń:
salonu wraz z aneksem kuchennym - 24,82m2 +7,07m2 z wyjściem na balkon 4,03m2
pokoju / sypialni - 14,96m2
łazienki - 4,20m2
przedpokoju 4,14m2
Niewątpliwym atutem apartamentu jest to, iż jest on klimatyzowany w systemie multisplit – salon z aneksem kuchennym oraz sypialnia, co pozwala na niezależne dostosowanie temperatury pomieszczeń. Standard wykończenia pozwala na zamieszkanie bez konieczności przeprowadzania jakichkolwiek remontów.
W przedpokoju znajdują się zabudowane szafy. W całości wydzielonej kuchni zamontowane są meble na wymiar, które maksymalizują przestrzeń do przechowywania. W mieszkaniu zamontowano bardzo duże okna balkonowe, dzięki czemu jest ono widne i ciepłe.
Mieszkanie charakteryzuje się bardzo niskimi kosztami ogrzewania - rachunki za gaz (CO i CWU) (roczne zużycie gazu - ok. 300 m3; temperatura w lokalu w okresie grzewczym - 21 stopni).
Wysokość czynszu za lokal mieszkalny – wraz z funduszem remontowym, bez mediów – wynosi jedynie 144,84 zł miesięcznie (za mieszkanie) i 71,05 (za garaż ). Całe umeblowanie mieszkania pozostaje w cenie.
Istnieje możliwość wykupienia miejsca postojowego w garażu podziemnym. Za miejscem postojowym znajduje się duża komórka lokatorska - 6,5 m2 (cena miejsca postojowego wraz z komórką – 70.000 zł).
Możliwe szybkie wydanie nieruchomości.
Polecamy i zapraszamy na prezentację.
www.posredniknieruchomosci.pl
Oferta wysłana z programu dla biur nieruchomości ASARI CRM (asaricrm.com)
Szczegóły
Typ nieruchomości:
mieszkanie na sprzedaż
Dodano:
2024-11-12 17:22:02
Ostatnia aktualizacja:
2025-07-16 13:49:01
Powierzchnia:
55,19 m²
Cena:
599 000 zł.
Cena za m²:
10 853,42 zł.
Piętro:
1 / 2
Liczba pokoi:
2
Lokalizacja:
POLSKA, ZACHODNIOPOMORSKIE, SZCZECIN, WARSZEWO, Maciejkowa
Rok budowy:
2013
Wysokość czynszu:
144,84
Rodzaj mieszkania:
2-POKOJOWE
Typ kuchni:
ANEKS KUCHENNY
Dostępne inst. w budynku:
TELEFON, INTERNETOWA
Droga dojazdowa:
ASFALTOWA
Okolice:
SZKOŁA, LAS, PLAC ZABAW
Zabezpieczenia:
MONITORING, DOMOFON
Forma własności działki:
WŁASNOŚĆ
Rodzaj budynku:
NISKI BLOK
Standard:
WYSOKI STANDARD
Materiał ścian:
CEGŁA
Okna:
PCV
Umeblowanie:
TAK
Przynależne:
GARAŻ, KOMÓRKA
Liczba łazienek:
1
Liczba wc:
0
Instalacje w mieszkaniu:
TELEWIZJA KABLOWA, INTERNETOWA, TELEFONICZNA
Źródło c.w.:
PIEC GAZOWY
Ogrzewanie:
C.O. GAZOWE
Dodatkowe:
BALKON
Forma własności:
WŁASNOŚĆ
Typ umowy pośrednictwa:
WYŁĄCZNOŚĆ
Agent:
Tomasz Jeżowski
Oferta specjalna:
TAK
Oferta własna:
TAK
Rynek:
WTÓRNY
Pośrednik:
Pośrednik Nieruchomości Spółka Cywilna
Nr ogłoszenia:
klikmapa-1206112