klikmapa.pl/o/poznan-450-000-zl-16974-m2-w-kamienicy-id1305083.html
Nr ogłoszenia: klikmapa-1305083 (aby przejść do tego ogłoszenia wpisz klikmapa-1305083 w wyszukiwarce na klikmapa.pl)
Poznań, 450 000 zł, 169.74 m2, w kamienicy
Ogłoszenie archiwalne
450 000zł
2 651zł/m²
169,74 m²
6 pok.piętro: 4
/4
POLSKA, WIELKOPOLSKIE, POZNAŃ, 28 Czerwca 1956 r.
Opis
Duży strych do adaptacji.
Polecam do sprzedaży strych do adaptacji na ostatnim czwartym piętrze w kamienicy z początku XX wieku znajdującej się przy ul. 28 Czerwca 1956 roku na poznańskiej Wildzie w okolicy Rynku Wildeckiego.
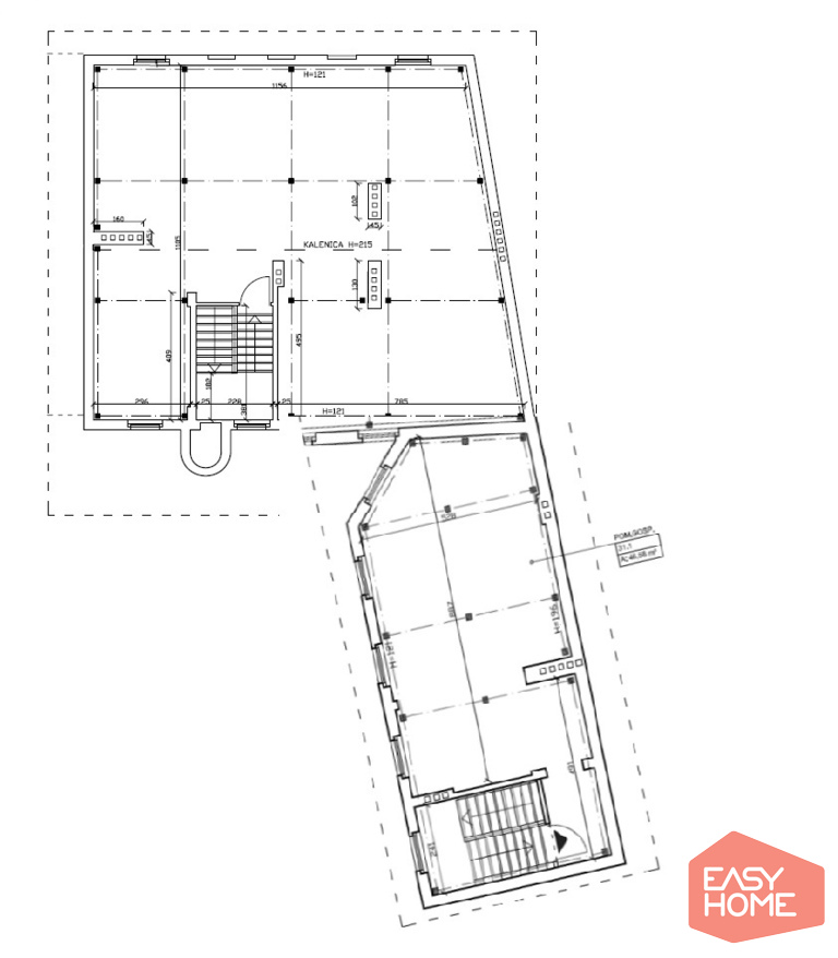
Powierzchnia strychowa, jedna wielka przestrzeń do własnej aranżacji. Całkowita powierzchnia liczona po podłodze wynosi ok. 170 m2. Nominalnie są to trzy niezależne mieszkania z własnymi KW zajmujące cały strych kamienicy i oficyny.
Wysokość pomieszczeń od 121 cm do 215 cm. Wszystkie media w budynku z możliwością dociągnięcia do mieszkania.
Istnieje możliwość nadbudowy ścian, a własna aranżacja pomieszczeń pozwoli wydatnie podnieść walory mieszkania poprzez lepsze wykorzystanie powierzchni. Dołączone rzuty mieszkań do oferty stanowią propozycję wykorzystania przestrzeni.
Pierwsze mieszkanie według załączonej propozycji ma 48,45 m2 i posiada następujący rozkład:
- pokój - 16,79 m2
- pokój - 12,99 m2
- kuchnia - 6,83 m2
- przedpokój - 8,61 m2
- łazienka - 3,23 m2
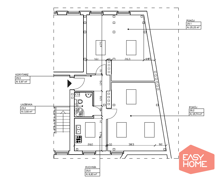
Drugie mieszkanie według załączonej propozycji ma 66,79 m2 i posiada następujący rozkład:
- pokój - 25,25 m2
- pokój - 25,74 m2
- kuchnia - 6,83 m2
- przedpokój - 5,97 m2
- łazienka - 3,00 m2
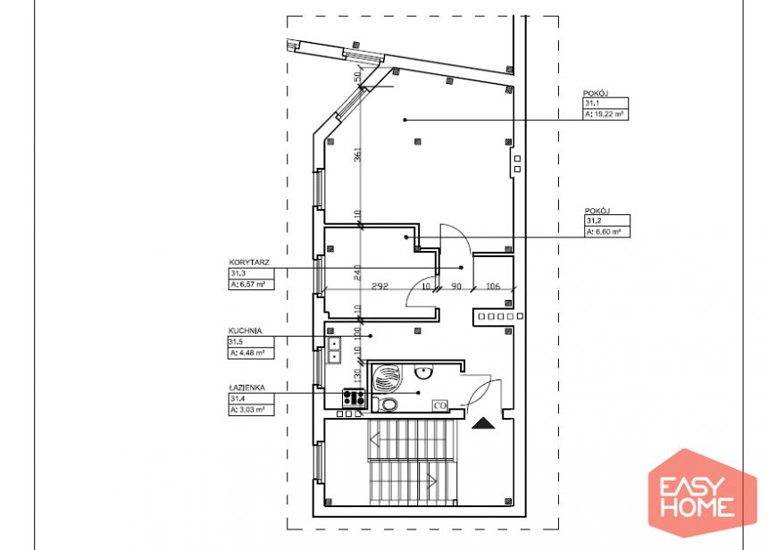
Trzecie mieszkanie (w oficynie) według załączonej propozycji ma 39,90 m2 i posiada następujący rozkład:
- pokój - 19,22 m2
- pokój - 6,60 m2
- kuchnia - 4,48 m2
- korytarz - 6,57 m2
- łazienka - 3,03 m2
Media: prąd, woda, gaz, kanalizacja, internet.
Kamienica ok. 5 lat temu przeszła termomodernizację wraz z remontem klatek schodowych.
Lokalizacja kamienicy pozwala na szybki dostęp do pełnej infrastruktury miasta. W pobliżu znajdziemy wiele sklepów, punktów usługowych, kościół czy szpital. W odległości kilku minut spacerem znajduje się Centrum Handlowe Avenida wraz dworcem kolejowym i autobusowym. W odległości kilku przystanków tramwajowych znajduje się Stary Browar, a dalej Stary Rynek.
Wszystko to sprawia, że proponowana oferta wydaje się być dobrą inwestycją pod wynajem jak i do wygodnego życia.
Świadectwo charakterystyki energetycznej w przygotowaniu.
Cena za całość: 450 000,00 zł
Cena do negocjacji.
KONTAKT: Mariusz Skrzydlewski
tel. 608 298 861
e-mail: m.skrzydlewski@easy-home.pl
Doradca ds. Nieruchomości.
KAŻDEMU KLIENTOWI OFERUJEMY BEZPŁATNĄ POMOC PRZY UZYSKANIU KREDYTU.
Oferta wysłana z programu dla biur nieruchomości ASARI CRM (asaricrm.com)
Powierzchnia strychowa, jedna wielka przestrzeń do własnej aranżacji. Całkowita powierzchnia liczona po podłodze wynosi ok. 170 m2. Nominalnie są to trzy niezależne mieszkania z własnymi KW zajmujące cały strych kamienicy i oficyny.
Wysokość pomieszczeń od 121 cm do 215 cm. Wszystkie media w budynku z możliwością dociągnięcia do mieszkania.
Istnieje możliwość nadbudowy ścian, a własna aranżacja pomieszczeń pozwoli wydatnie podnieść walory mieszkania poprzez lepsze wykorzystanie powierzchni. Dołączone rzuty mieszkań do oferty stanowią propozycję wykorzystania przestrzeni.
Pierwsze mieszkanie według załączonej propozycji ma 48,45 m2 i posiada następujący rozkład:
- pokój - 16,79 m2
- pokój - 12,99 m2
- kuchnia - 6,83 m2
- przedpokój - 8,61 m2
- łazienka - 3,23 m2
Drugie mieszkanie według załączonej propozycji ma 66,79 m2 i posiada następujący rozkład:
- pokój - 25,25 m2
- pokój - 25,74 m2
- kuchnia - 6,83 m2
- przedpokój - 5,97 m2
- łazienka - 3,00 m2
Trzecie mieszkanie (w oficynie) według załączonej propozycji ma 39,90 m2 i posiada następujący rozkład:
- pokój - 19,22 m2
- pokój - 6,60 m2
- kuchnia - 4,48 m2
- korytarz - 6,57 m2
- łazienka - 3,03 m2
Media: prąd, woda, gaz, kanalizacja, internet.
Kamienica ok. 5 lat temu przeszła termomodernizację wraz z remontem klatek schodowych.
Lokalizacja kamienicy pozwala na szybki dostęp do pełnej infrastruktury miasta. W pobliżu znajdziemy wiele sklepów, punktów usługowych, kościół czy szpital. W odległości kilku minut spacerem znajduje się Centrum Handlowe Avenida wraz dworcem kolejowym i autobusowym. W odległości kilku przystanków tramwajowych znajduje się Stary Browar, a dalej Stary Rynek.
Wszystko to sprawia, że proponowana oferta wydaje się być dobrą inwestycją pod wynajem jak i do wygodnego życia.
Świadectwo charakterystyki energetycznej w przygotowaniu.
Cena za całość: 450 000,00 zł
Cena do negocjacji.
KONTAKT: Mariusz Skrzydlewski
tel. 608 298 861
e-mail: m.skrzydlewski@easy-home.pl
Doradca ds. Nieruchomości.
KAŻDEMU KLIENTOWI OFERUJEMY BEZPŁATNĄ POMOC PRZY UZYSKANIU KREDYTU.
Oferta wysłana z programu dla biur nieruchomości ASARI CRM (asaricrm.com)
Szczegóły
Typ nieruchomości:
mieszkanie na sprzedaż
Dodano:
2025-06-23 10:58:02
Ostatnia aktualizacja:
2025-07-22 12:08:01
Powierzchnia:
169,74 m²
Cena:
450 000 zł.
Cena za m²:
2 651,11 zł.
Piętro:
4 / 4
Liczba pokoi:
6
Lokalizacja:
POLSKA, WIELKOPOLSKIE, POZNAŃ, 28 Czerwca 1956 r.
Rodzaj mieszkania:
POW.4 POKOI
Okolice:
FITNES, BANK, BASEN, RESTAURACJA, CENTRUM HANDLOWE, SZKOŁA, PRZEDSZKOLE, SZPITAL, PARK, HALA SPORTOWA, KOŚCIÓŁ, BAR
Forma własności działki:
WŁASNOŚĆ
Rodzaj budynku:
KAMIENICA
Standard:
DO ADAPTACJI
Materiał ścian:
CEGŁA
Forma własności:
WŁASNOŚĆ
Typ umowy pośrednictwa:
OTWARTA
Agent:
Mariusz Skrzydlewski
Oferta specjalna:
NIE
Oferta własna:
TAK
Rynek:
WTÓRNY
Pośrednik:
EASY-HOME Agencja Nieruchomości
Nr ogłoszenia:
klikmapa-1305083