klikmapa.pl/o/olawa-599-000-zl-841-m2-pietro-1-id687967.html
Nr ogłoszenia: klikmapa-687967 (aby przejść do tego ogłoszenia wpisz klikmapa-687967 w wyszukiwarce na klikmapa.pl)
Oława, 599 000 zł, 84.1 m2, pietro 1
599 000zł
7 122zł/m²
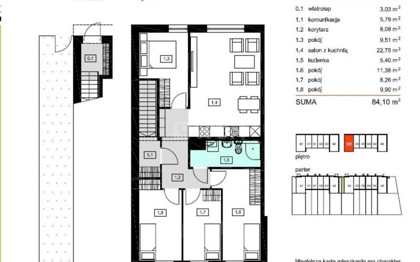
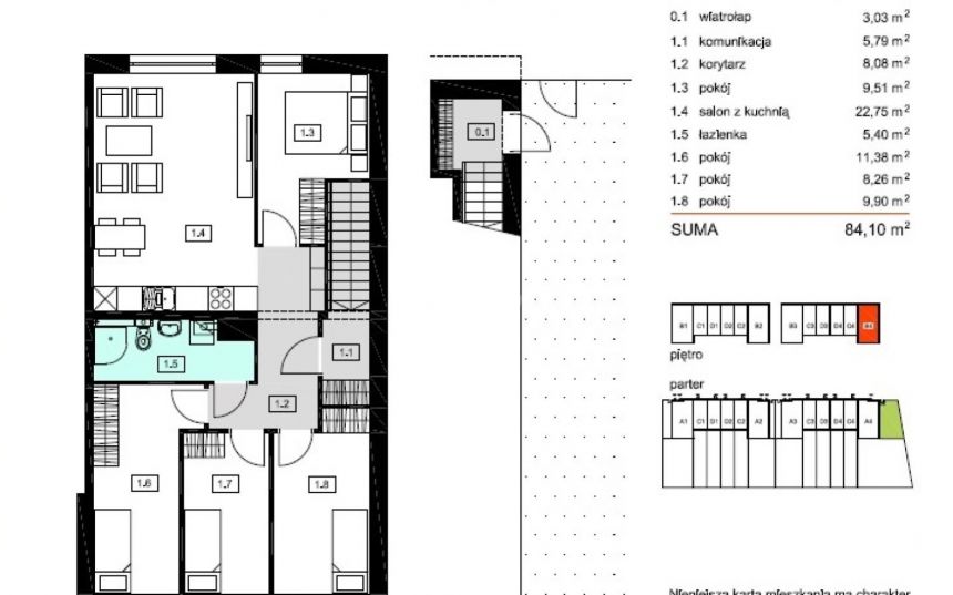
84,10 m²
4 pok.piętro: 1
/2
Polska, Dolnośląskie, oławski, Oława, Jagodowa
Opis
GOTOWE MIESZKANIA BEZ PCC
Oferujemy na sprzedaż gotowy lokal mieszkalny znajdujący się w domku w zabudowie szeregowej w Oławie przy ulicy Jagodowej. Eleganckie osiedle w perfekcyjny sposób łączy spokojny, odprężający klimat z wszystkimi atutami bliskości centrum miasta. To doskonały wybór dla osób, które cenią ciszę, a przy tym potrzebują szybkiego i łatwego dostępu do miasta. Inwestycja po odbiorach, mieszkanie czeka na aranżację wnętrza przez nowego właściciela.
W ofercie ostatnie mieszkanie jednopoziomowe znajdujące się na piętrze budynku, z samodzielnym wejściem do budynku oraz przynależnym ogródkiem. Powierzchnia lokalu wynosi 84,10 m2 i składa się z czterech sypialni, salonu z aneksem kuchennym, łazienki oraz przedsionka, w którym znalazło się miejsce na szafę na odzienie wierzchnie przy wejściu do lokalu. Z dwóch pokoi wyjście na balkon z widokiem na otwartą przestrzeń. Do mieszkania przynależy niewielki ogródek o powierzchniach około 26 m2, a także wykostkowane miejsce postojowe.
W lokalu ogrzewanie podłogowe zasilane dwufunkcyjnym kotłem gazowym De Dietrich- gaz propan ze zbiornika podziemnego. W łazience dodatkowo grzejnik drabinkowy. Okna PCV w kolorze grafitowym od zewnątrz i od wewnątrz. Budynek wybudowany z pustaków ceramicznych, ocieplony styropianem 30 cm, dach pokryty grafitową dachówką ceramiczną, stropy ocieplone wełną mineralną.
Lokalizacja osiedla przy nowej tzw drodze ulgi, daje możliwość szybkiego dostania się na dworzec PKP, oraz na drugą stronę miasta bez konieczności stania w korkach.
KUPUJĄCY NIE PŁACI PCC ORAZ WYNAGRODZENIA BIURA
Zachęcam do obejrzenia nieruchomości
Przy konieczności finansowania zakupu nieruchomości kredytem, zapewniamy profesjonalną, bezpłatną pomoc doświadczonych doradców współpracujących z ponad dwudziestoma bankami.
~
Oferujemy na sprzedaż gotowy lokal mieszkalny znajdujący się w domku w zabudowie szeregowej w Oławie przy ulicy Jagodowej. Eleganckie osiedle w perfekcyjny sposób łączy spokojny, odprężający klimat z wszystkimi atutami bliskości centrum miasta. To doskonały wybór dla osób, które cenią ciszę, a przy tym potrzebują szybkiego i łatwego dostępu do miasta. Inwestycja po odbiorach, mieszkanie czeka na aranżację wnętrza przez nowego właściciela.
W ofercie ostatnie mieszkanie jednopoziomowe znajdujące się na piętrze budynku, z samodzielnym wejściem do budynku oraz przynależnym ogródkiem. Powierzchnia lokalu wynosi 84,10 m2 i składa się z czterech sypialni, salonu z aneksem kuchennym, łazienki oraz przedsionka, w którym znalazło się miejsce na szafę na odzienie wierzchnie przy wejściu do lokalu. Z dwóch pokoi wyjście na balkon z widokiem na otwartą przestrzeń. Do mieszkania przynależy niewielki ogródek o powierzchniach około 26 m2, a także wykostkowane miejsce postojowe.
W lokalu ogrzewanie podłogowe zasilane dwufunkcyjnym kotłem gazowym De Dietrich- gaz propan ze zbiornika podziemnego. W łazience dodatkowo grzejnik drabinkowy. Okna PCV w kolorze grafitowym od zewnątrz i od wewnątrz. Budynek wybudowany z pustaków ceramicznych, ocieplony styropianem 30 cm, dach pokryty grafitową dachówką ceramiczną, stropy ocieplone wełną mineralną.
Lokalizacja osiedla przy nowej tzw drodze ulgi, daje możliwość szybkiego dostania się na dworzec PKP, oraz na drugą stronę miasta bez konieczności stania w korkach.
KUPUJĄCY NIE PŁACI PCC ORAZ WYNAGRODZENIA BIURA
Zachęcam do obejrzenia nieruchomości
Przy konieczności finansowania zakupu nieruchomości kredytem, zapewniamy profesjonalną, bezpłatną pomoc doświadczonych doradców współpracujących z ponad dwudziestoma bankami.
~
Szczegóły
Typ nieruchomości:
mieszkanie na sprzedaż
Dodano:
2022-09-28 23:58:57
Ostatnia aktualizacja:
2025-06-19 00:00:02
Powierzchnia:
84,10 m²
Cena:
599 000 zł.
Cena za m²:
7 122,47 zł.
Piętro:
1 / 2
Liczba pokoi:
4
Lokalizacja:
Polska, Dolnośląskie, oławski, Oława, Jagodowa
Rok budowy:
2022
Forma własności:
własność
Typ zabudowy:
blok
Wyłączność:
nie
Stan mieszkania:
do wykończenia
Kuchnia:
z oknem, w aneksie
Okna:
1
Kształt:
132
Powierzchnia dodatkowa:
balkon
Głośność:
ciche
Udogodnienia:
centralne ogrzewanie
Garaż:
brak
Agent prowadzący:
Karolina Domanska, Oława, ul. Strzelna 8a
Pośrednik:
WGN - Nieruchomości
Nr ogłoszenia:
klikmapa-687967