klikmapa.pl/o/krakow-swoszowice-798-000-zl-9869-m2-aneks-kuchenny-polaczony-z-jadalnia-id1243576.html
Nr ogłoszenia: klikmapa-1243576 (aby przejść do tego ogłoszenia wpisz klikmapa-1243576 w wyszukiwarce na klikmapa.pl)
Kraków Swoszowice, 798 000 zł, 98.69 m2, aneks kuchenny połączony z jadalnią
798 000zł
8 086zł/m²
98,69 m²
4 pok.piętro: 1
/1
małopolskie, Kraków m., Kraków, Swoszowice
Opis
Segment narożny z ogrodem i garażem Ochojno
Ostatni dostępny segment z dużym ogrodem! ok 8500 metr! + ogród + parking 2 auta.
Zapraszamy do skorzystania z wyjątkowej okazji zakupu narożnego segmentu położonego przy granicy Krakowa, tuż obok malowniczego lasu.
Lokalizacja: Ochojno, obok Krakowa, Swoszowic, Libertowa, Opatkowic i Wróblowic.
Oferowany segment:
Narożny segment, pierwszy od wjazdu, z dużym ogrodem.
Powierzchnia całkowita około 100 m² - jako taras ziemny.
Dodatkowa przestrzeń na strychu.
Układ pomieszczeń:
Słoneczny pokój dzienny z trzema oknami balkonowymi i dostępem do ogrodu.
Kuchnia otwarta z oknem.
Dwie łazienki z oknami.
Trzy sypialnie.
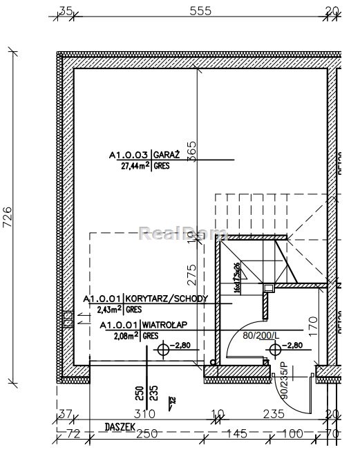
Garaż o powierzchni ponad 30 m², idealny do adaptacji na dodatkowy pokój, biuro domowe czy siłownię.
Standard:
Nowoczesny piec i system ogrzewania podłogowego na całej powierzchni, w tym w garażu.
Pełne media: prąd, gaz, woda, kanalizacja miejska.
Szybki internet zapewniony.
Bezpieczeństwo zakupu:
Nieruchomość bez obciążeń.
5 lat rękojmi na wady.
Lokal z odbiorem do użytkowania i kompletem dokumentów.
Zwolnienie z podatku PCC (2%).
Cena obejmuje:
Lokal w standardzie deweloperskim: 4 pokoje z aneksem kuchennym, 2 łazienki, duży ogród, garaż, parking przed garażem.
Możliwość parkowania dodatkowych samochodów przed budynkiem (teren na wyłączność).
Nasza firma zapewnia pełną obsługę w uzyskaniu kredytu, w tym możliwość skorzystania z dostępnych dofinansowań. Zakup segmentu jest dostępny również dla obcokrajowców bez konieczności uzyskiwania dodatkowych pozwoleń.
Zapraszamy do kontaktu:
Telefon: 600 160 66 lub 604 613 712
Email: biuro@realdom.pl
Strona internetowa RealDom www.realdom.pl
Polecamy ten segment w urokliwej okolicy tuż obok lasu i przy granicy z Krakowem!
Aktualne ceny i dostępność: wyślij SMS na 600160666 o treści OCHOJNO odeślemy link
Pośrednik odpowiedzialny zawodowo za wykonanie umowy pośrednictwa: RealDom (licencja nr: 9071)
Oferta wysłana z systemu Galactica Virgo
Zapraszamy do skorzystania z wyjątkowej okazji zakupu narożnego segmentu położonego przy granicy Krakowa, tuż obok malowniczego lasu.
Lokalizacja: Ochojno, obok Krakowa, Swoszowic, Libertowa, Opatkowic i Wróblowic.
Oferowany segment:
Narożny segment, pierwszy od wjazdu, z dużym ogrodem.
Powierzchnia całkowita około 100 m² - jako taras ziemny.
Dodatkowa przestrzeń na strychu.
Układ pomieszczeń:
Słoneczny pokój dzienny z trzema oknami balkonowymi i dostępem do ogrodu.
Kuchnia otwarta z oknem.
Dwie łazienki z oknami.
Trzy sypialnie.
Garaż o powierzchni ponad 30 m², idealny do adaptacji na dodatkowy pokój, biuro domowe czy siłownię.
Standard:
Nowoczesny piec i system ogrzewania podłogowego na całej powierzchni, w tym w garażu.
Pełne media: prąd, gaz, woda, kanalizacja miejska.
Szybki internet zapewniony.
Bezpieczeństwo zakupu:
Nieruchomość bez obciążeń.
5 lat rękojmi na wady.
Lokal z odbiorem do użytkowania i kompletem dokumentów.
Zwolnienie z podatku PCC (2%).
Cena obejmuje:
Lokal w standardzie deweloperskim: 4 pokoje z aneksem kuchennym, 2 łazienki, duży ogród, garaż, parking przed garażem.
Możliwość parkowania dodatkowych samochodów przed budynkiem (teren na wyłączność).
Nasza firma zapewnia pełną obsługę w uzyskaniu kredytu, w tym możliwość skorzystania z dostępnych dofinansowań. Zakup segmentu jest dostępny również dla obcokrajowców bez konieczności uzyskiwania dodatkowych pozwoleń.
Zapraszamy do kontaktu:
Telefon: 600 160 66 lub 604 613 712
Email: biuro@realdom.pl
Strona internetowa RealDom www.realdom.pl
Polecamy ten segment w urokliwej okolicy tuż obok lasu i przy granicy z Krakowem!
Aktualne ceny i dostępność: wyślij SMS na 600160666 o treści OCHOJNO odeślemy link
Pośrednik odpowiedzialny zawodowo za wykonanie umowy pośrednictwa: RealDom (licencja nr: 9071)
Oferta wysłana z systemu Galactica Virgo
Szczegóły
Typ nieruchomości:
mieszkanie na sprzedaż
Dodano:
2025-02-19 16:26:02
Ostatnia aktualizacja:
2025-06-03 09:13:02
Powierzchnia:
98,69 m²
Cena:
798 000 zł.
Cena za m²:
8 085,93 zł.
Piętro:
1 / 1
Liczba pokoi:
4
Lokalizacja:
małopolskie, Kraków m., Kraków, Swoszowice
Rok budowy:
2024
Typ budynku:
szeregowiec
Stan nieruchomości:
deweloperski
Ogrzewanie:
C.O. GAZOWE
Miejsca parkingowe:
w bryle
Agent prowadzący:
RealDom
Licencja pośrednika:
9071
Wysokość pomieszczeń:
260
Dwupoziomowe:
Tak
Internet:
Tak
Wyłączność:
Nie
Zwolnienie z prowizji:
Nie
Liczba łazienek:
2
Stolarka okienna:
nowe PCV
Liczba miejsc parkingowych:
2
Łazienka / wc:
Tak
Typ dachu:
dachówka
Winda:
Nie
Kuchnia:
aneks kuchenny - połączony z jadalnią
Liczba sypialni:
3
Pośrednik:
RealDom NIERUCHOMOŚCI
Nr ogłoszenia:
klikmapa-1243576