klikmapa.pl/o/krakow-stare-miasto-18-180-zl-303-m2-pietro-2-2-id1308946.html
 Nr ogłoszenia: klikmapa-1308946 (aby przejść do tego ogłoszenia wpisz klikmapa-1308946 w wyszukiwarce na klikmapa.pl)
Kraków Stare Miasto, 18 180 zł, 303 m2, pietro 2, 2
 Ogłoszenie archiwalne
18 180zł
60zł/m²
303  m²
    9 pok.piętro: 2
/2
małopolskie, Kraków m., Kraków, Stare miasto , Stare Miasto, Czarnowiejska
Opis
Lokal biurowy o pow. 303m2, Stare Miasto Kraków!!!
| 
Oferujemy lokal biurowy o pow. 303m2 przy ul. Karmelickiej w Krakowie.
 
Lokalizacja:
 
Adres: Ul. Karmelicka, Kraków
Bezpośredni dostęp do przystanku tramwajowego "Batorego".
Zaledwie 1 przystanek tramwajowy od Teatru Bagateli i Rynku Głównego
Centrum Krakowa, 15 minut pieszo do Rynku Głównego
 
Parametry lokalu:
 
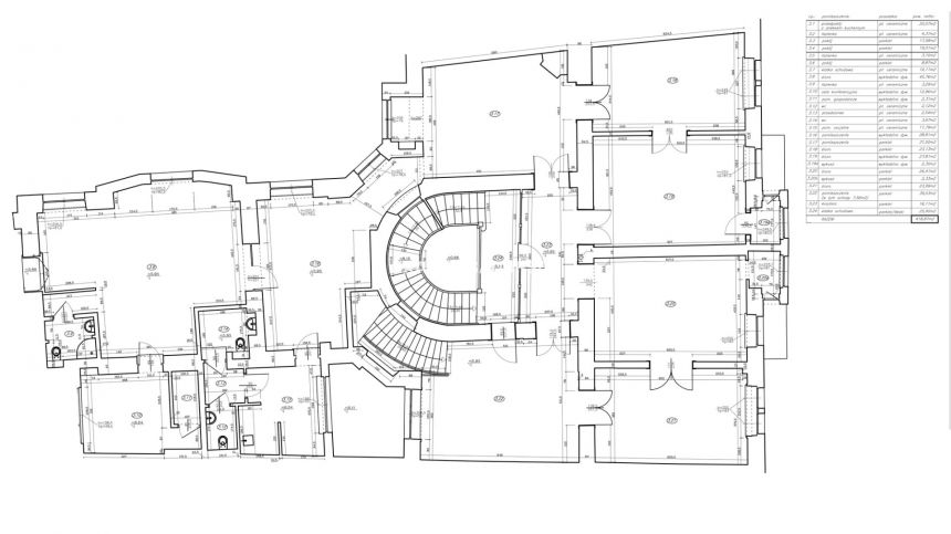
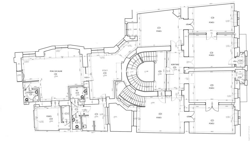
Powierzchnia: 303 m²
Lokal znajduje się na 2. piętrze (ostatnie piętro)
9 pomieszczeń, 2 łazienki, WC, kuchnia, pomieszczenie gospodarcze, korytarz
Możliwość podziału pomieszczeń na mniejsze
Odświeżony po poprzednich najemcach (odnowione parkiety, pomalowane ściany)
 
Budowa i standard:
 
Kamienica wyremontowana wewnątrz i na zewnątrz
Wysokie sufity, przestronne i dobrze doświetlone pomieszczenia
Planowana winda w budynku (w wyniku inwestycji część kuchni zostanie zmniejszona)
 
Dostępność i komunikacja:
 
Bardzo dobra dostępność komunikacyjna: przystanek tramwajowy tuż przy wejściu do lokalu
Ogrzewanie gazowe
Domofon przy wejściu
Dostępność lokalu od stycznia 2025 roku
 
Zalety lokalizacji:
 
Idealna na działalność usługową i biurową
Bezpośredni dostęp do głównej ulicy Karmelickiej
Otoczenie: restauracje, sklepy spożywcze, kawiarnie w bliskiej odległości
W pobliżu Teatr Bagatela, Sukiennice, Galeria Krakowska oraz Dworzec Główny
 
Otoczenie i infrastruktura:
 
Sklep spożywczy: 10 m
Restauracje, piekarnia, kawiarnia: 20 m
W odległości 500 m Teatr Bagatela, 900 m Sukiennice i Rynek Główny
Galeria Krakowska i Dworzec Główny: 1,5 km (3 przystanki tramwajowe)
 
Podsumowanie:
Lokal w samym sercu Krakowa, idealny do prowadzenia różnorodnej działalności usługowej i biurowej. Świetna lokalizacja, bezpośredni dostęp do przystanku tramwajowego oraz bliskość głównych atrakcji Krakowa sprawiają, że jest to oferta godna uwagi.
Cena netto + 23%VAT + media
Zachęcamy do kontaktu i umówienia się na prezentację tej wyjątkowej nieruchomości!
Dariusz Zieliński
503-112-787
::DODATKOWE INFORMACJE |
Rodzaj budynku: kamienica |
Dozór budynku: monitoring |
Gaz: jest |
Woda: jest |
Dojazd: asfalt |
Otoczenie: centrum miasta |
Ogrzewanie: centralne |
Alarm: TAK |
Internet: TAK |
Komunikacja publ.: autobus miejski, tramwaj, autobus |
Winda: NIE |
Usytuowanie: dwustronne |
Witryna wystawowa: brak |
Wejście: od ulicy |
Liczba wejść: 1 |
Teren ogrodzony: TAK |
Min. okres naj. (mies.): 12 |
Opłaty w czynszu: fundusz remontowy, Części wspólne, administracja |
Opłaty wg liczników: woda, prąd, gaz |
Stan lokalu: bardzo dobry |
Instalacje: dobre |
Powierzchnia użytkowa [m2]: 303 |
Rok budowy: 1900 |
Rodzaj lokalu: jednopoziomowy |
Przeznaczenie lokalu: usługowy, biurowy |
Liczba pokoi: 9 |
Liczba kondyg. biurowych: 1 |
Typ kaucji: trzymiesięczna |
::LINK DO STRONY |
https://sadurscy.pl/offer/BS2-LW-306198
::KONTAKT DO AGENTA |
Dariusz Zieliński |
+48 503-112-787 |
darek.zielinski@sadurscy.pl
::DANE BIURA |
Oddział BS2, Rynek Pierwotny |
Przewóz 47 |
30-081 Kraków |
12 630-90-45
Pośrednik odpowiedzialny zawodowo za wykonanie umowy pośrednictwa: Dariusz Sadurski (licencja nr: 803)
--------------------------
::GRATIS | Nasza prowizja zawiera: koszt przedwstępnej notarialnej umowy sprzedaży nieruchomości z rynku wtórnego.
::GWARANCJA | Gwarancja zwrotu zadatku. Więcej informacji na sadurscy.pl/zwrot-zadatku/
|
Oferta wysłana z systemu Galactica Virgo
Oferujemy lokal biurowy o pow. 303m2 przy ul. Karmelickiej w Krakowie.
Lokalizacja:
Adres: Ul. Karmelicka, Kraków
Bezpośredni dostęp do przystanku tramwajowego "Batorego".
Zaledwie 1 przystanek tramwajowy od Teatru Bagateli i Rynku Głównego
Centrum Krakowa, 15 minut pieszo do Rynku Głównego
Parametry lokalu:
Powierzchnia: 303 m²
Lokal znajduje się na 2. piętrze (ostatnie piętro)
9 pomieszczeń, 2 łazienki, WC, kuchnia, pomieszczenie gospodarcze, korytarz
Możliwość podziału pomieszczeń na mniejsze
Odświeżony po poprzednich najemcach (odnowione parkiety, pomalowane ściany)
Budowa i standard:
Kamienica wyremontowana wewnątrz i na zewnątrz
Wysokie sufity, przestronne i dobrze doświetlone pomieszczenia
Planowana winda w budynku (w wyniku inwestycji część kuchni zostanie zmniejszona)
Dostępność i komunikacja:
Bardzo dobra dostępność komunikacyjna: przystanek tramwajowy tuż przy wejściu do lokalu
Ogrzewanie gazowe
Domofon przy wejściu
Dostępność lokalu od stycznia 2025 roku
Zalety lokalizacji:
Idealna na działalność usługową i biurową
Bezpośredni dostęp do głównej ulicy Karmelickiej
Otoczenie: restauracje, sklepy spożywcze, kawiarnie w bliskiej odległości
W pobliżu Teatr Bagatela, Sukiennice, Galeria Krakowska oraz Dworzec Główny
Otoczenie i infrastruktura:
Sklep spożywczy: 10 m
Restauracje, piekarnia, kawiarnia: 20 m
W odległości 500 m Teatr Bagatela, 900 m Sukiennice i Rynek Główny
Galeria Krakowska i Dworzec Główny: 1,5 km (3 przystanki tramwajowe)
Podsumowanie:
Lokal w samym sercu Krakowa, idealny do prowadzenia różnorodnej działalności usługowej i biurowej. Świetna lokalizacja, bezpośredni dostęp do przystanku tramwajowego oraz bliskość głównych atrakcji Krakowa sprawiają, że jest to oferta godna uwagi.
Cena netto + 23%VAT + media
Zachęcamy do kontaktu i umówienia się na prezentację tej wyjątkowej nieruchomości!
Dariusz Zieliński
503-112-787
::DODATKOWE INFORMACJE |
Rodzaj budynku: kamienica |
Dozór budynku: monitoring |
Gaz: jest |
Woda: jest |
Dojazd: asfalt |
Otoczenie: centrum miasta |
Ogrzewanie: centralne |
Alarm: TAK |
Internet: TAK |
Komunikacja publ.: autobus miejski, tramwaj, autobus |
Winda: NIE |
Usytuowanie: dwustronne |
Witryna wystawowa: brak |
Wejście: od ulicy |
Liczba wejść: 1 |
Teren ogrodzony: TAK |
Min. okres naj. (mies.): 12 |
Opłaty w czynszu: fundusz remontowy, Części wspólne, administracja |
Opłaty wg liczników: woda, prąd, gaz |
Stan lokalu: bardzo dobry |
Instalacje: dobre |
Powierzchnia użytkowa [m2]: 303 |
Rok budowy: 1900 |
Rodzaj lokalu: jednopoziomowy |
Przeznaczenie lokalu: usługowy, biurowy |
Liczba pokoi: 9 |
Liczba kondyg. biurowych: 1 |
Typ kaucji: trzymiesięczna |
::LINK DO STRONY |
https://sadurscy.pl/offer/BS2-LW-306198
::KONTAKT DO AGENTA |
Dariusz Zieliński |
+48 503-112-787 |
darek.zielinski@sadurscy.pl
::DANE BIURA |
Oddział BS2, Rynek Pierwotny |
Przewóz 47 |
30-081 Kraków |
12 630-90-45
Pośrednik odpowiedzialny zawodowo za wykonanie umowy pośrednictwa: Dariusz Sadurski (licencja nr: 803)
--------------------------
::GRATIS | Nasza prowizja zawiera: koszt przedwstępnej notarialnej umowy sprzedaży nieruchomości z rynku wtórnego.
::GWARANCJA | Gwarancja zwrotu zadatku. Więcej informacji na sadurscy.pl/zwrot-zadatku/
|
Oferta wysłana z systemu Galactica Virgo
Szczegóły 
Typ nieruchomości:
lokal do wynajęcia
Dodano:
2025-06-26 19:14:38
Ostatnia aktualizacja:
2025-08-28 19:26:11
Powierzchnia:
303 m² 
Cena:
18 180 zł.
Cena za m²:
60 zł.
Piętro:
2 / 2
Liczba pokoi:
9
Lokalizacja:
małopolskie, Kraków m., Kraków, Stare miasto , Stare Miasto, Czarnowiejska
Rok budowy:
1900
Stan nieruchomości: 
bardzo dobry
Ogrzewanie: 
centralne
Agent prowadzący: 
Dariusz Zieliński
Licencja pośrednika: 
20371
Wyłączność: 
Nie
Zwolnienie z prowizji: 
Nie
Droga dojazdowa: 
asfalt
Typ lokalu: 
usługowy, biurowy
Zabezpieczenia: 
alarm,,monitoring
Pośrednik:
Agencja Nieruchomości Bracia Sadurscy
Nr ogłoszenia:
klikmapa-1308946