klikmapa.pl/o/krakow-pychowice-1-299-000-zl-280-m2-ogrzewanie-gazowe-id1316556.html
Nr ogłoszenia: klikmapa-1316556 (aby przejść do tego ogłoszenia wpisz klikmapa-1316556 w wyszukiwarce na klikmapa.pl)
Kraków Pychowice, 1 299 000 zł, 280 m2, ogrzewanie gazowe
Ogłoszenie archiwalne
1 299 000zł
4 639zł/m²
280 m²
9 pok.
małopolskie, Kraków m., Kraków, Dębniki, Pychowice, Tyniecka
Opis
Doskonała lokalizacja, Zakrzówek, dom 280m2
|
ZDJĘCIA W OGŁOSZENIU NALEŻĄ DO WŁAŚCICIELA OFERTY
ULICA TYNIECKA - REJON ZAKRZÓWKA / oferta również dla inwestora /
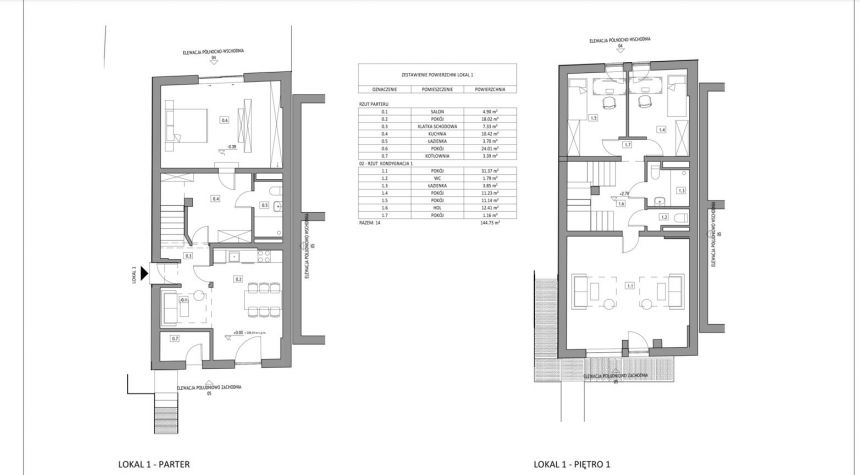
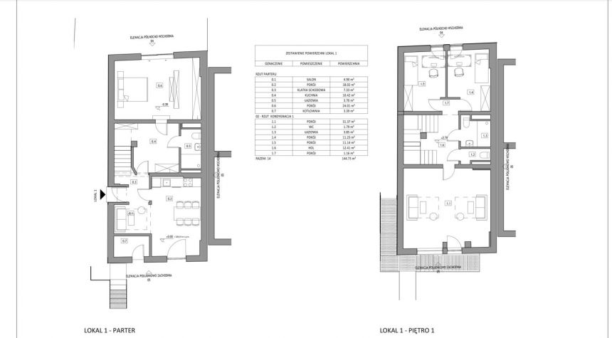
Oferujemy do sprzedaży dom w zabudowie bliźniaczej o pow. około 280 m2 / budynek nie posiada wspólnych elementów konstrukcyjnych z budynkiem sąsiednim /
Z uwagi na planowaną rozbudowę i nadbudowę, dla budynku przeprowadzono ocenę stanu technicznego konstrukcji i elementów budynku z uwzględnieniem stanu podłoża gruntowego. Ocena jest pozytywna.
Budynek został wzniesiony metodą tradycyjną, z pustaków z wieńcem żelbetowym. Fundamenty stanowią ławy żelbetowe gr. 40 cm i szerokości 70 cm pod ścianami zewnętrznymi i 80 cm pod ścianami wewnętrznymi nośnymi. Ściany zewnętrzne murowane, gr. 40 cm, ściany wewnętrzne 25 cm. Stropy żelbetowe, płytowe gr. 12 cm.
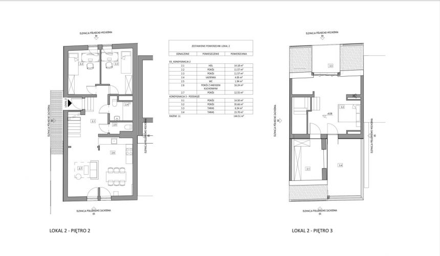
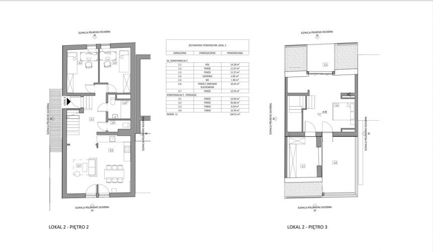
Posiadamy koncepcję architektoniczną przebudowy i rozbudowy budynku, której realizacja pozwoli na uzyskanie 4 mieszkań o pow. po 80 m2 lub 8 po 37 m2. Likwidacja istniejących widokowych tarasów pozwoli uzyskać dodatkowo mieszkania o pow. około 80 m2.
Na terenie posesji znajduje się również parterowy dom z lat 50-tych o pow. około 140 m2, z garażem, którego nadbudowa pozwoli uzyskać dwa kolejne mieszkania o pow. około 95 i 55 m2.
Doskonała lokalizacja, do przystanku autobusowego linii 112 / dojazd do Ronda Grunwaldzkiego / 203 / dojazd do pętli autobusowej i tramwajowej przy Czerwonych Makach / 30 m. Z górnych kondygnacji przepiękny widok na zakole Wisły, Las Bielańsko Tyniecki, Klasztor Kamedułów. Wokół tereny rekreacyjne, m. innymi ścieżka rowerowa do Tyńca, baseny na Zakrzówku. Bardzo blisko do Kampusu UJ oraz szeregu firm o profilu IT położonych na Ruczaju.
Prezentacja nieruchomości po podpisaniu umowy pośrednictwa jest bezpłatna.
Kontakt : Adam +48 510 131 177
adam@sadurscy.pl
::DODATKOWE INFORMACJE |
Prąd: w budynku |
Gaz: tak - miejski |
Woda: jest |
Dojazd: asfalt |
Otoczenie: działki zabudowane |
Ogrzewanie: gazowe |
Kanalizacja: w ulicy |
Komunikacja publ.: autobus miejski |
Okna: PCV |
Instalacje: niewymienione |
Balkon: mały |
Wymiary działki [m]: 10 x 50 |
Zagosp. działki: zagospodarowana |
Ukształtowanie działki: płaska |
Kształt działki: prostokąt |
Rodzaj domu: bliźniak |
Stan wybudowania: Pod klucz |
Typ elewacji: tynk zwykły |
Podst. materiał budowlany: beton, pustak |
Pokrycie dachu: dachówka |
Stan budynku: do remontu |
Podpiwniczenie: nie |
Garaż: garaż |
Ogrodzenie działki: siatka |
Rok budowy: 1991 |
Liczba pokoi: 9 |
Wysokość pomieszczeń [m]: 2,5000 |
Liczba sypialni: 4 |
Podłogi pokoi: panele |
Ściany pokoi: zwykłe |
::LINK DO STRONY |
https://sadurscy.pl/offer/BS1-DS-309523
::KONTAKT DO AGENTA |
Adam Kubala |
+48 510-131-177 |
adam@sadurscy.pl
::DANE BIURA |
Oddział BS1, Kapelanka |
Kapelanka 1A/1 |
30-347 Kraków |
12 429-25-12
|
Oferta wysłana z systemu Galactica Virgo
ZDJĘCIA W OGŁOSZENIU NALEŻĄ DO WŁAŚCICIELA OFERTY
ULICA TYNIECKA - REJON ZAKRZÓWKA / oferta również dla inwestora /
Oferujemy do sprzedaży dom w zabudowie bliźniaczej o pow. około 280 m2 / budynek nie posiada wspólnych elementów konstrukcyjnych z budynkiem sąsiednim /
Z uwagi na planowaną rozbudowę i nadbudowę, dla budynku przeprowadzono ocenę stanu technicznego konstrukcji i elementów budynku z uwzględnieniem stanu podłoża gruntowego. Ocena jest pozytywna.
Budynek został wzniesiony metodą tradycyjną, z pustaków z wieńcem żelbetowym. Fundamenty stanowią ławy żelbetowe gr. 40 cm i szerokości 70 cm pod ścianami zewnętrznymi i 80 cm pod ścianami wewnętrznymi nośnymi. Ściany zewnętrzne murowane, gr. 40 cm, ściany wewnętrzne 25 cm. Stropy żelbetowe, płytowe gr. 12 cm.
Posiadamy koncepcję architektoniczną przebudowy i rozbudowy budynku, której realizacja pozwoli na uzyskanie 4 mieszkań o pow. po 80 m2 lub 8 po 37 m2. Likwidacja istniejących widokowych tarasów pozwoli uzyskać dodatkowo mieszkania o pow. około 80 m2.
Na terenie posesji znajduje się również parterowy dom z lat 50-tych o pow. około 140 m2, z garażem, którego nadbudowa pozwoli uzyskać dwa kolejne mieszkania o pow. około 95 i 55 m2.
Doskonała lokalizacja, do przystanku autobusowego linii 112 / dojazd do Ronda Grunwaldzkiego / 203 / dojazd do pętli autobusowej i tramwajowej przy Czerwonych Makach / 30 m. Z górnych kondygnacji przepiękny widok na zakole Wisły, Las Bielańsko Tyniecki, Klasztor Kamedułów. Wokół tereny rekreacyjne, m. innymi ścieżka rowerowa do Tyńca, baseny na Zakrzówku. Bardzo blisko do Kampusu UJ oraz szeregu firm o profilu IT położonych na Ruczaju.
Prezentacja nieruchomości po podpisaniu umowy pośrednictwa jest bezpłatna.
Kontakt : Adam +48 510 131 177
adam@sadurscy.pl
::DODATKOWE INFORMACJE |
Prąd: w budynku |
Gaz: tak - miejski |
Woda: jest |
Dojazd: asfalt |
Otoczenie: działki zabudowane |
Ogrzewanie: gazowe |
Kanalizacja: w ulicy |
Komunikacja publ.: autobus miejski |
Okna: PCV |
Instalacje: niewymienione |
Balkon: mały |
Wymiary działki [m]: 10 x 50 |
Zagosp. działki: zagospodarowana |
Ukształtowanie działki: płaska |
Kształt działki: prostokąt |
Rodzaj domu: bliźniak |
Stan wybudowania: Pod klucz |
Typ elewacji: tynk zwykły |
Podst. materiał budowlany: beton, pustak |
Pokrycie dachu: dachówka |
Stan budynku: do remontu |
Podpiwniczenie: nie |
Garaż: garaż |
Ogrodzenie działki: siatka |
Rok budowy: 1991 |
Liczba pokoi: 9 |
Wysokość pomieszczeń [m]: 2,5000 |
Liczba sypialni: 4 |
Podłogi pokoi: panele |
Ściany pokoi: zwykłe |
::LINK DO STRONY |
https://sadurscy.pl/offer/BS1-DS-309523
::KONTAKT DO AGENTA |
Adam Kubala |
+48 510-131-177 |
adam@sadurscy.pl
::DANE BIURA |
Oddział BS1, Kapelanka |
Kapelanka 1A/1 |
30-347 Kraków |
12 429-25-12
|
Oferta wysłana z systemu Galactica Virgo
Szczegóły
Typ nieruchomości:
dom na sprzedaż
Dodano:
2025-07-10 17:22:18
Ostatnia aktualizacja:
2025-07-17 17:00:02
Powierzchnia:
280 m²
Cena:
1 299 000 zł.
Cena za m²:
4 639,29 zł.
Liczba pokoi:
9
Lokalizacja:
małopolskie, Kraków m., Kraków, Dębniki, Pychowice, Tyniecka
Rok budowy:
1991
Typ nieruchomości:
bliźniak
Material budowlany:
beton, pustak
Stan budynku:
do remontu
Ogrzewanie:
gazowe
Podłączenie wody:
jest
Gaz:
tak - miejski
Agent prowadzący:
Adam Kubala
Wysokość pomieszczeń:
250
Balkon:
Tak
Wyłączność:
Nie
Zwolnienie z prowizji:
Nie
Forma własności:
Własność
Powierzchnia działki:
500
Stolarka okienna:
PCV
Energia elektryczna:
Tak
Kanalizacja:
w ulicy
Typ dachu:
dachówka
Szerokość działki:
10
Ogrodzenie:
siatka
Droga dojazdowa:
asfalt
Liczba sypialni:
4
Pośrednik:
Agencja Nieruchomości Bracia Sadurscy
Nr ogłoszenia:
klikmapa-1316556