klikmapa.pl/o/krakow-grzegorzki-7-906-zl-134-m2-10-pokoi-id1242750.html
Nr ogłoszenia: klikmapa-1242750 (aby przejść do tego ogłoszenia wpisz klikmapa-1242750 w wyszukiwarce na klikmapa.pl)
Kraków Grzegórzki, 7 906 zł, 134 m2, 10 pokoi
Ogłoszenie archiwalne
7 906zł
59zł/m²
134 m²
10 pok.
małopolskie, Kraków m., Kraków, Grzegórzki, Grzegórzki, Cystersów
Opis
Atrakcyjny lokal w pobliżu Ronda Mogilskiego
|
Bardzo atrakcyjna nieruchomość do wynajmu w pobliżu Ronda Mogilskiego przy ulicy Cystersów .
LOKALIZACJA
Dzielnica: Grzegórzki
LOKALIZACJA: Budynek położony jest w ścisłym centrum dzielnicy Krakowa- Grzegórzkach. Usytuowany w pobliżu przystanków tramwajowych i autobusowych umożliwiających szybki dojazd na terenie całego Krakowa. Bardzo dobra lokalizacja, zarówno dla osób poruszających się komunikacją miejską i samochodami. Od Ronda Grzegórzeckiego dzieli nas zaledwie 1,5 km, natomiast od Ronda Mogilskiego 2 km, co stwarza doskonałe warunki logistyczne, jeśli chodzi o dojazd z każdej części miasta.
W pobliżu: Komunikacja miejska, liczne sklepy oraz punkty usługowe, restauracje, piekarnie, market.
W odległości 2 min pieszo znajduje się przystanek tramwajowy.
W najbliższej okolicy znajduje się market oraz wiele restauracji i punktów usługowych, galeria Krakowska jest w odległości 2 km, Rynek Główny 3,4 km, Kazimierz 3 km.
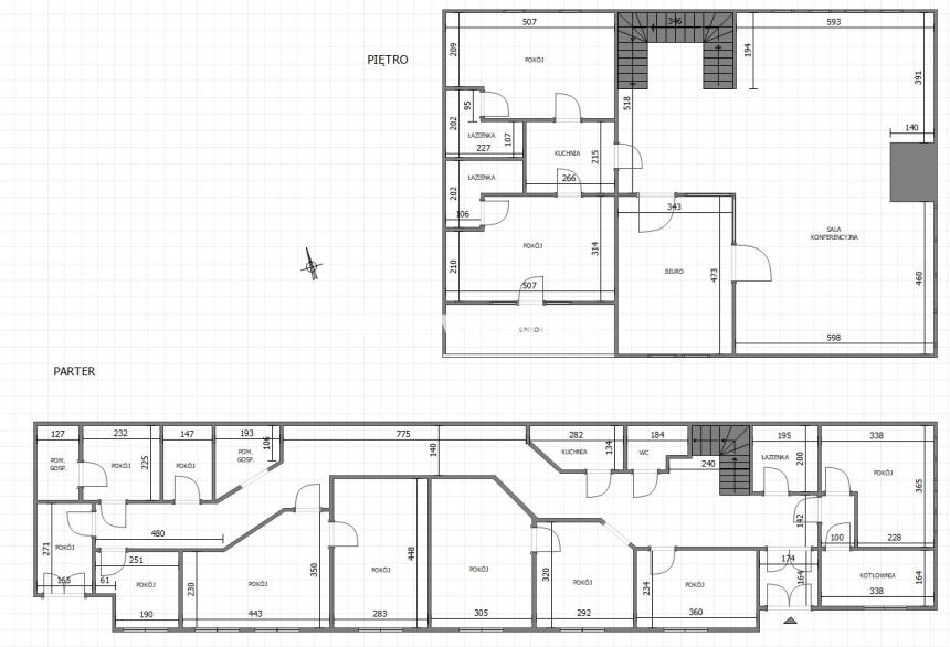
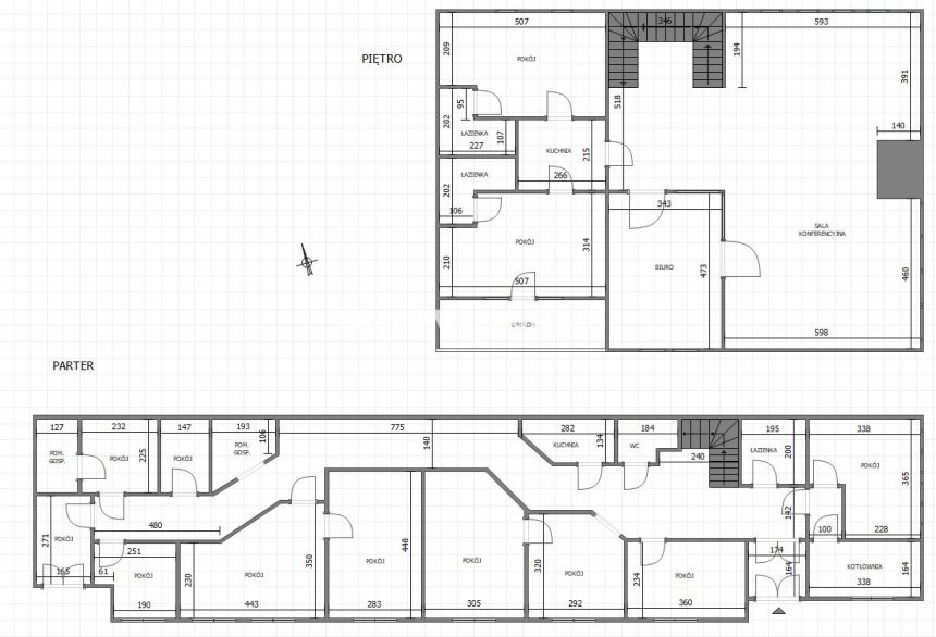
Powierzchni do najmu leży w całości na parterze w budynku biurowym .
Powierzchnia parter 134 m 2.
Lokal składa się z następujących pomieszczeń :
10 pokoi
2 pomieszczenia gospodarcze
łazienka
WC
Kuchnia
Kotłownia
Suma - 134 m2
Budynek idealnie nadaje się na biura lub na siedzibę firmy .
Nieruchomość leży na działce o powierzchni 7 arów.
Możliwość parkowania przed budynkiem na parkingu wewnętrznym bez opłat za strefę / 2-4 miejsca/
Ogrzewanie budynku i CWU gazowe, kocioł Junkers i wymiennik ciepła.
Budynek idealnie nadający się na siedzibę firmy, kancelarie, działalność medyczną .
Możliwość pozostawienia w budynku pełnego wyposażenia biurowego widocznego na zdjęciach .
Zapraszam do współpracy.
Umowa na wyłączność .
Cena najmu 7906 zł netto miesięcznie + media.
Dodatkowo płatna:
Kaucja w wysokości dwumiesięcznego czynszu najmu
prowizja dla biura nieruchomości .
Kontakt :
Rafał Duda
tel. 507 890 500
::DODATKOWE INFORMACJE |
Rodzaj budynku: budynek wolnostojący |
Dojazd: ASFALTOWA |
Ogrzewanie: C.O. miejskie |
Linie telefoniczne: TAK |
Alarm: TAK |
Komunikacja publ.: autobus miejski, tramwaj, autobus |
Winda: NIE |
Sąsiedztwo: centrum miasta |
Usytuowanie: dwustronne |
Klimatyzacja: TAK |
Sieć komputerowa: TAK |
Wysokość kondygnacji [m]: 2,7 |
Możliwość parkowania: tak |
Własny parking: TAK |
Położenie lokalu: główna ulica handlowa |
Witryna wystawowa: od ulicy |
Wejście: od ulicy |
Liczba wejść: 1 |
Teren ogrodzony: TAK |
Indywid. aranżacja: TAK |
Sala konferencyjna: TAK |
Kategoria biurowca: B |
Stan lokalu: bardzo dobry |
Okna: drewniane |
Instalacje: dobre |
Powierzchnia użytkowa [m2]: 134 |
Rok budowy: 2000 |
Rodzaj lokalu: jednopoziomowy |
Przeznaczenie lokalu: usługowy, biurowy |
Czynsz najmu netto /m2: 59 |
Liczba pokoi: 10 |
Liczba kondyg. biurowych: 2 |
Typ kaucji: dwumiesięczna |
::LINK DO STRONY |
https://sadurscy.pl/offer/BS3-LW-263244
::KONTAKT DO AGENTA |
Rafał Duda |
+48 507-894-500 |
rafal@sadurscy.pl
::DANE BIURA |
Oddział BS3, Przewóz |
Przewóz 47/1 piętro |
31-509 Kraków |
12 429-11-00
Pośrednik odpowiedzialny zawodowo za wykonanie umowy pośrednictwa: Dariusz Sadurski (licencja nr: 803)
--------------------------
::GRATIS | Nasza prowizja zawiera: koszt przedwstępnej notarialnej umowy sprzedaży nieruchomości z rynku wtórnego.
::GWARANCJA | Gwarancja zwrotu zadatku. Więcej informacji na sadurscy.pl/zwrot-zadatku/
|
Oferta wysłana z systemu Galactica Virgo
Bardzo atrakcyjna nieruchomość do wynajmu w pobliżu Ronda Mogilskiego przy ulicy Cystersów .
LOKALIZACJA
Dzielnica: Grzegórzki
LOKALIZACJA: Budynek położony jest w ścisłym centrum dzielnicy Krakowa- Grzegórzkach. Usytuowany w pobliżu przystanków tramwajowych i autobusowych umożliwiających szybki dojazd na terenie całego Krakowa. Bardzo dobra lokalizacja, zarówno dla osób poruszających się komunikacją miejską i samochodami. Od Ronda Grzegórzeckiego dzieli nas zaledwie 1,5 km, natomiast od Ronda Mogilskiego 2 km, co stwarza doskonałe warunki logistyczne, jeśli chodzi o dojazd z każdej części miasta.
W pobliżu: Komunikacja miejska, liczne sklepy oraz punkty usługowe, restauracje, piekarnie, market.
W odległości 2 min pieszo znajduje się przystanek tramwajowy.
W najbliższej okolicy znajduje się market oraz wiele restauracji i punktów usługowych, galeria Krakowska jest w odległości 2 km, Rynek Główny 3,4 km, Kazimierz 3 km.
Powierzchni do najmu leży w całości na parterze w budynku biurowym .
Powierzchnia parter 134 m 2.
Lokal składa się z następujących pomieszczeń :
10 pokoi
2 pomieszczenia gospodarcze
łazienka
WC
Kuchnia
Kotłownia
Suma - 134 m2
Budynek idealnie nadaje się na biura lub na siedzibę firmy .
Nieruchomość leży na działce o powierzchni 7 arów.
Możliwość parkowania przed budynkiem na parkingu wewnętrznym bez opłat za strefę / 2-4 miejsca/
Ogrzewanie budynku i CWU gazowe, kocioł Junkers i wymiennik ciepła.
Budynek idealnie nadający się na siedzibę firmy, kancelarie, działalność medyczną .
Możliwość pozostawienia w budynku pełnego wyposażenia biurowego widocznego na zdjęciach .
Zapraszam do współpracy.
Umowa na wyłączność .
Cena najmu 7906 zł netto miesięcznie + media.
Dodatkowo płatna:
Kaucja w wysokości dwumiesięcznego czynszu najmu
prowizja dla biura nieruchomości .
Kontakt :
Rafał Duda
tel. 507 890 500
::DODATKOWE INFORMACJE |
Rodzaj budynku: budynek wolnostojący |
Dojazd: ASFALTOWA |
Ogrzewanie: C.O. miejskie |
Linie telefoniczne: TAK |
Alarm: TAK |
Komunikacja publ.: autobus miejski, tramwaj, autobus |
Winda: NIE |
Sąsiedztwo: centrum miasta |
Usytuowanie: dwustronne |
Klimatyzacja: TAK |
Sieć komputerowa: TAK |
Wysokość kondygnacji [m]: 2,7 |
Możliwość parkowania: tak |
Własny parking: TAK |
Położenie lokalu: główna ulica handlowa |
Witryna wystawowa: od ulicy |
Wejście: od ulicy |
Liczba wejść: 1 |
Teren ogrodzony: TAK |
Indywid. aranżacja: TAK |
Sala konferencyjna: TAK |
Kategoria biurowca: B |
Stan lokalu: bardzo dobry |
Okna: drewniane |
Instalacje: dobre |
Powierzchnia użytkowa [m2]: 134 |
Rok budowy: 2000 |
Rodzaj lokalu: jednopoziomowy |
Przeznaczenie lokalu: usługowy, biurowy |
Czynsz najmu netto /m2: 59 |
Liczba pokoi: 10 |
Liczba kondyg. biurowych: 2 |
Typ kaucji: dwumiesięczna |
::LINK DO STRONY |
https://sadurscy.pl/offer/BS3-LW-263244
::KONTAKT DO AGENTA |
Rafał Duda |
+48 507-894-500 |
rafal@sadurscy.pl
::DANE BIURA |
Oddział BS3, Przewóz |
Przewóz 47/1 piętro |
31-509 Kraków |
12 429-11-00
Pośrednik odpowiedzialny zawodowo za wykonanie umowy pośrednictwa: Dariusz Sadurski (licencja nr: 803)
--------------------------
::GRATIS | Nasza prowizja zawiera: koszt przedwstępnej notarialnej umowy sprzedaży nieruchomości z rynku wtórnego.
::GWARANCJA | Gwarancja zwrotu zadatku. Więcej informacji na sadurscy.pl/zwrot-zadatku/
|
Oferta wysłana z systemu Galactica Virgo
Szczegóły
Typ nieruchomości:
lokal do wynajęcia
Dodano:
2025-02-18 10:15:02
Ostatnia aktualizacja:
2025-10-28 14:21:02
Powierzchnia:
134 m²
Cena:
7 906 zł.
Cena za m²:
59 zł.
Liczba pokoi:
10
Lokalizacja:
małopolskie, Kraków m., Kraków, Grzegórzki, Grzegórzki, Cystersów
Rok budowy:
2000
Stan nieruchomości:
bardzo dobry
Ogrzewanie:
C.O. miejskie
Umeblowanie pomieszczeń:
Tak
Agent prowadzący:
Rafał Duda
Licencja pośrednika:
18351
Wyłączność:
Tak
Zwolnienie z prowizji:
Nie
Klimatyzacja:
Tak
Stolarka okienna:
drewniane
Droga dojazdowa:
ASFALTOWA
Typ lokalu:
usługowy, biurowy
Zabezpieczenia:
alarm
Pośrednik:
Agencja Nieruchomości Bracia Sadurscy
Nr ogłoszenia:
klikmapa-1242750