klikmapa.pl/o/krakow-czyzyny-3-300-000-zl-23003-m2-do-zamieszkania-id1311320.html
Nr ogłoszenia: klikmapa-1311320 (aby przejść do tego ogłoszenia wpisz klikmapa-1311320 w wyszukiwarce na klikmapa.pl)
Kraków Czyżyny, 3 300 000 zł, 230.03 m2, do zamieszkania
Ogłoszenie archiwalne
3 300 000zł
14 346zł/m²
230,03 m²
5 pok.
małopolskie, Kraków m., Kraków, Czyżyny, Czyżyny, Nastrojowa
Opis
Dom wolno stojący - Czyżyny!
|
Dom wolno stojący na osiedlu domów jednorodzinnych w Czyżynach o pow.: 230,03 m 2 , na działce - 665 m 2 .
Przestronny, komfortowy dom w bardzo dobrym stanie, 3 kondygnacyjny z 2-ma garażami na działce o regularnym kształcie i wymiarach: 19x35 m.
Dom z przełomu lat 60 i 70 -tych XX w., po gruntownym remoncie w roku 2005 i 2015.
Wymienione zostały wszystkie instalacje wewnętrzne, zostały ocieplone ściany fundamentowe, dach oraz wymieniona stolarka okienna. W roku 2023 zostały ocieplone ściany zewnętrzne.
Dom składa się:
- z kondygnacji przyziemnej o pow.: 71,66 m 2 , zawierającej: garaż jednostanowiskowy o pow.: 18,42 m 2 , kotłownię (2,86 m 2 ), garderobę (13,76 m 2 ), łazienkę (7,96 m 2 ), pokój (siłownia) o pow.: 13,76 m 2 ; pokój (9,20 m 2 ), schowek (1,44 m 2 ) oraz Hol (4,26 m 2 ).
- parteru o pow: 93,45 m 2 , zawierającego: garaż o pow.: 29,74 m 2 , wiatrołap (4,34 m 2 ), garderobę (4,80 m 2 ), wc (1,05 m 2 ), kuchnię (8,07 m 2 ), pokój (15,48 m 2 ) oraz salon (24,72 m 2 ) z wyjściem na taras,
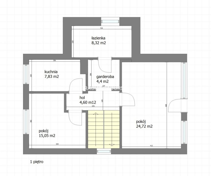
- piętra o pow.: 64,92 m 2 , zawierającego: hol (4,60 m 2 ), garderobę (4,40 m 2 ), łazienkę (8,32 m 2 ), pokój (15,05 m 2 ) i pokój (24,72 m 2 ) z wyjściem na balkon.
Media: woda z sieci miejskiej, gaz, kanalizacja miejska, prąd, przyłącze siły do zasilania pojazdów elektrycznych w garażu.
Ogrzewanie i ciepła woda z pieca gazowego kondensacyjnego, dwufunkcyjnego (z roku 2020).
Dom z powodzeniem może pełnić rolę dwurodzinnego. Idealny dostęp do komunikacji miejskiej oraz bogatej infrastruktury handlowej i usługowej.
Szczegóły oferty:
+48 502 104 545
::DODATKOWE INFORMACJE |
Prąd: jest |
Gaz: tak - miejski |
Woda: tak - miejska |
Dojazd: asfalt |
Otoczenie: zabudowa jednorodzinna |
Ogrzewanie: piec dwufunkcyjny |
Kanalizacja: miejska |
Komunikacja publ.: autobus miejski, tramwaj |
Okna: PCV |
Instalacje: wymienione |
Balkon: jest |
Liczba balkonów: 1 |
Tarasy: taras duży |
Liczba tarasów: 1 |
Ukształtowanie działki: płaska |
Kształt działki: prostokąt |
Rodzaj domu: wolnostojący |
Typ elewacji: tynk szlachetny |
Podst. materiał budowlany: cegła |
Pokrycie dachu: papa termozgrzewalna |
Pozwolenie na użytkowanie: tak |
Powierzchnia użytkowa [m2]: 230,0300 |
Stan budynku: do zamieszkania |
Garaż: w budynku |
Ogrodzenie działki: ogrodzona |
Rok budowy: 1970 |
Liczba pokoi: 5 |
Wysokość pomieszczeń [m]: 2,5000 |
Powierzchnia pokoi [m2]: 9,31; 24,70; 13,76; 24,70; 13,45 |
Powierzchnia kuchni [m2]: 8,73; 8,00 |
Liczba łazienek: 2 |
Powierzchnia łazienki [m2]: 8,24; 9,10 |
Liczba WC: 1 |
Powierzchnia WC: 1,0 |
::LINK DO STRONY |
https://sadurscy.pl/offer/BS5-DS-298779
::KONTAKT DO AGENTA |
Dariusz Kornaś |
+48 502-104-545 |
darek2@sadurscy.pl
::DANE BIURA |
Oddział BS5, Nowa Huta |
Bracia Sadurscy Dariusz Sadurski |
Os. Kazimierzowskie 36 |
31-844 Kraków |
12 265 10 29
Pośrednik odpowiedzialny zawodowo za wykonanie umowy pośrednictwa: Dariusz Sadurski (licencja nr: 803)
|
Oferta wysłana z systemu Galactica Virgo
Dom wolno stojący na osiedlu domów jednorodzinnych w Czyżynach o pow.: 230,03 m 2 , na działce - 665 m 2 .
Przestronny, komfortowy dom w bardzo dobrym stanie, 3 kondygnacyjny z 2-ma garażami na działce o regularnym kształcie i wymiarach: 19x35 m.
Dom z przełomu lat 60 i 70 -tych XX w., po gruntownym remoncie w roku 2005 i 2015.
Wymienione zostały wszystkie instalacje wewnętrzne, zostały ocieplone ściany fundamentowe, dach oraz wymieniona stolarka okienna. W roku 2023 zostały ocieplone ściany zewnętrzne.
Dom składa się:
- z kondygnacji przyziemnej o pow.: 71,66 m 2 , zawierającej: garaż jednostanowiskowy o pow.: 18,42 m 2 , kotłownię (2,86 m 2 ), garderobę (13,76 m 2 ), łazienkę (7,96 m 2 ), pokój (siłownia) o pow.: 13,76 m 2 ; pokój (9,20 m 2 ), schowek (1,44 m 2 ) oraz Hol (4,26 m 2 ).
- parteru o pow: 93,45 m 2 , zawierającego: garaż o pow.: 29,74 m 2 , wiatrołap (4,34 m 2 ), garderobę (4,80 m 2 ), wc (1,05 m 2 ), kuchnię (8,07 m 2 ), pokój (15,48 m 2 ) oraz salon (24,72 m 2 ) z wyjściem na taras,
- piętra o pow.: 64,92 m 2 , zawierającego: hol (4,60 m 2 ), garderobę (4,40 m 2 ), łazienkę (8,32 m 2 ), pokój (15,05 m 2 ) i pokój (24,72 m 2 ) z wyjściem na balkon.
Media: woda z sieci miejskiej, gaz, kanalizacja miejska, prąd, przyłącze siły do zasilania pojazdów elektrycznych w garażu.
Ogrzewanie i ciepła woda z pieca gazowego kondensacyjnego, dwufunkcyjnego (z roku 2020).
Dom z powodzeniem może pełnić rolę dwurodzinnego. Idealny dostęp do komunikacji miejskiej oraz bogatej infrastruktury handlowej i usługowej.
Szczegóły oferty:
+48 502 104 545
::DODATKOWE INFORMACJE |
Prąd: jest |
Gaz: tak - miejski |
Woda: tak - miejska |
Dojazd: asfalt |
Otoczenie: zabudowa jednorodzinna |
Ogrzewanie: piec dwufunkcyjny |
Kanalizacja: miejska |
Komunikacja publ.: autobus miejski, tramwaj |
Okna: PCV |
Instalacje: wymienione |
Balkon: jest |
Liczba balkonów: 1 |
Tarasy: taras duży |
Liczba tarasów: 1 |
Ukształtowanie działki: płaska |
Kształt działki: prostokąt |
Rodzaj domu: wolnostojący |
Typ elewacji: tynk szlachetny |
Podst. materiał budowlany: cegła |
Pokrycie dachu: papa termozgrzewalna |
Pozwolenie na użytkowanie: tak |
Powierzchnia użytkowa [m2]: 230,0300 |
Stan budynku: do zamieszkania |
Garaż: w budynku |
Ogrodzenie działki: ogrodzona |
Rok budowy: 1970 |
Liczba pokoi: 5 |
Wysokość pomieszczeń [m]: 2,5000 |
Powierzchnia pokoi [m2]: 9,31; 24,70; 13,76; 24,70; 13,45 |
Powierzchnia kuchni [m2]: 8,73; 8,00 |
Liczba łazienek: 2 |
Powierzchnia łazienki [m2]: 8,24; 9,10 |
Liczba WC: 1 |
Powierzchnia WC: 1,0 |
::LINK DO STRONY |
https://sadurscy.pl/offer/BS5-DS-298779
::KONTAKT DO AGENTA |
Dariusz Kornaś |
+48 502-104-545 |
darek2@sadurscy.pl
::DANE BIURA |
Oddział BS5, Nowa Huta |
Bracia Sadurscy Dariusz Sadurski |
Os. Kazimierzowskie 36 |
31-844 Kraków |
12 265 10 29
Pośrednik odpowiedzialny zawodowo za wykonanie umowy pośrednictwa: Dariusz Sadurski (licencja nr: 803)
|
Oferta wysłana z systemu Galactica Virgo
Szczegóły
Typ nieruchomości:
dom na sprzedaż
Dodano:
2025-07-02 12:00:27
Ostatnia aktualizacja:
2025-07-16 15:20:02
Powierzchnia:
230,03 m²
Cena:
3 300 000 zł.
Cena za m²:
14 345,95 zł.
Liczba pokoi:
5
Lokalizacja:
małopolskie, Kraków m., Kraków, Czyżyny, Czyżyny, Nastrojowa
Rok budowy:
1970
Typ nieruchomości:
wolnostojący
Material budowlany:
cegła
Stan budynku:
do zamieszkania
Ogrzewanie:
piec dwufunkcyjny
Podłączenie wody:
tak - miejska
Gaz:
tak - miejski
Agent prowadzący:
Dariusz Kornaś
Licencja pośrednika:
22629
Wysokość pomieszczeń:
250
Balkon:
Tak
Taras:
Tak
Wyłączność:
Nie
Zwolnienie z prowizji:
Nie
Forma własności:
Własność
Powierzchnia łazienki:
8,24
Powierzchnia działki:
665
Liczba łazienek:
2
Stolarka okienna:
PCV
Energia elektryczna:
Tak
Kanalizacja:
miejska
Typ dachu:
papa termozgrzewalna
Ogrodzenie:
ogrodzona
Droga dojazdowa:
asfalt
Pośrednik:
Agencja Nieruchomości Bracia Sadurscy
Nr ogłoszenia:
klikmapa-1311320