kontakt
Royal Home Sebastian Babik
790 699 369
Administratorem danych osobowych jest AMK Portal sp. z o.o.
dom na sprzedaż Kobyla Góra, 895 000 zł, 129.45 m2, jasna kuchnia
895 000zł
129,45m²
6 914 zł/m²
4 pok.
Polska, wielkopolskie, ostrzeszowski, Kobyla Góra
Opis
Nowoczesny, przestronny 4 pok dom z ogrodem.
Miejscowość Lipnik należąca do wsi Kobyla Góra woj. wielkopolskie
Przestronny, nowoczesny, w bardzo dobrym standardzie dom wolnostojący wybudowany w roku 2017 o pow. 129,45 m usytuowany na działce o pow. 1092 m w miejscowości wypoczynkowej z mikroklimatem. Dom parterowy z możliwością adaptacji poddasza i uzyskania dodatkowych pomieszczeń ( pokoju, łazienki i przedpokoju ). Parter domu został wykończony i znajdują się w nim następujące pomieszczenia, przestronny salon z wyjściem na taras i ogród, kuchnia, trzy pokoje, duża, łazienka, hol, przedpokój oraz pomieszczenie gospodarcze.
Dom wybudowany i wykończony z wysokiej jakości materiałów, ściany domu zbudowane z Porothermu, docieplone zostały wełną mineralną o grubości 15 cm, dach pokryty blachodachówką, który również został docieplony wełną mineralną grubości 30 cm, okna PCV trzyszybowe z roletami zewnętrznymi sterowanymi elektrycznie i manualnie, na ścianach gładzie gipsowe, na podłogach gres oraz dobrej jakości panele. Nieruchomość ogrzewana jest nowoczesnym piecem elektrycznym firmy Kospel, ale istnieje możliwość zamontowania dodatkowego źródła ogrzewania jakim jest kominek w salonie, we wszystkich pomieszczeniach rozprowadzone zostało ogrzewanie podłogowe. Rozkład pomieszczeń daje swobodę poruszania się w nim, a ustawny i funkcjonalny układ czyni go bardzo atrakcyjnym i wygodnym. Na posesji znajduje się szambo ekologiczne, woda i energia elektryczna, natomiast w drodze jest światłowód.
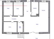
Metraże poszczególnych pomieszczeń:
Parter: ( pow. 108,15 m )
- salon 29,90 m
- pokój 12,10 m
- pokój 11,05 m
- pokój 11,15 m
- kuchnia 11,75 m
- łazienka 8,15 m
- hol 10,95 m
- przedpokój 8,20 m
- pomieszczenie gospodarcze 4,90 m
Poddasze: ( pow. 21,30 m )
Przynależności do domu to taras o pow. 21,60 m.
Spokój, cisza oraz bliskość zieleni i natury sprawia, iż dom jest idealnym miejscem do zamieszkania dla osób pragnących wytchnienia od zgiełku miasta. W miejscowości Kobyla Góra liczne sklepy, kościół, ośrodek zdrowia, apteki, w okolicy liczne tereny zielone i trasy rowerowe. Bliski dojazd do Ostrzeszowa, Sycowa oraz do autostrady S8.
Zakup lub najem Nieruchomości przez nasze biuro to przede wszystkim:
bezpieczeństwo transakcji, dobra cena, indywidualne i elastyczne podejście do naszych klientów.
Możesz skorzystać również z:
opieki prawnej przy transakcji, doradców kredytowych, kancelarii notarialnej oraz wsparcia wykwalifikowanych negocjatorów.
Niniejsze ogłoszenie nie stanowi oferty handlowej w rozumieniu przepisów art. 66 k.c., a przedstawione dane mają charakter informacyjny.
Przestronny, nowoczesny, w bardzo dobrym standardzie dom wolnostojący wybudowany w roku 2017 o pow. 129,45 m usytuowany na działce o pow. 1092 m w miejscowości wypoczynkowej z mikroklimatem. Dom parterowy z możliwością adaptacji poddasza i uzyskania dodatkowych pomieszczeń ( pokoju, łazienki i przedpokoju ). Parter domu został wykończony i znajdują się w nim następujące pomieszczenia, przestronny salon z wyjściem na taras i ogród, kuchnia, trzy pokoje, duża, łazienka, hol, przedpokój oraz pomieszczenie gospodarcze.
Dom wybudowany i wykończony z wysokiej jakości materiałów, ściany domu zbudowane z Porothermu, docieplone zostały wełną mineralną o grubości 15 cm, dach pokryty blachodachówką, który również został docieplony wełną mineralną grubości 30 cm, okna PCV trzyszybowe z roletami zewnętrznymi sterowanymi elektrycznie i manualnie, na ścianach gładzie gipsowe, na podłogach gres oraz dobrej jakości panele. Nieruchomość ogrzewana jest nowoczesnym piecem elektrycznym firmy Kospel, ale istnieje możliwość zamontowania dodatkowego źródła ogrzewania jakim jest kominek w salonie, we wszystkich pomieszczeniach rozprowadzone zostało ogrzewanie podłogowe. Rozkład pomieszczeń daje swobodę poruszania się w nim, a ustawny i funkcjonalny układ czyni go bardzo atrakcyjnym i wygodnym. Na posesji znajduje się szambo ekologiczne, woda i energia elektryczna, natomiast w drodze jest światłowód.
Metraże poszczególnych pomieszczeń:
Parter: ( pow. 108,15 m )
- salon 29,90 m
- pokój 12,10 m
- pokój 11,05 m
- pokój 11,15 m
- kuchnia 11,75 m
- łazienka 8,15 m
- hol 10,95 m
- przedpokój 8,20 m
- pomieszczenie gospodarcze 4,90 m
Poddasze: ( pow. 21,30 m )
Przynależności do domu to taras o pow. 21,60 m.
Spokój, cisza oraz bliskość zieleni i natury sprawia, iż dom jest idealnym miejscem do zamieszkania dla osób pragnących wytchnienia od zgiełku miasta. W miejscowości Kobyla Góra liczne sklepy, kościół, ośrodek zdrowia, apteki, w okolicy liczne tereny zielone i trasy rowerowe. Bliski dojazd do Ostrzeszowa, Sycowa oraz do autostrady S8.
Zakup lub najem Nieruchomości przez nasze biuro to przede wszystkim:
bezpieczeństwo transakcji, dobra cena, indywidualne i elastyczne podejście do naszych klientów.
Możesz skorzystać również z:
opieki prawnej przy transakcji, doradców kredytowych, kancelarii notarialnej oraz wsparcia wykwalifikowanych negocjatorów.
Niniejsze ogłoszenie nie stanowi oferty handlowej w rozumieniu przepisów art. 66 k.c., a przedstawione dane mają charakter informacyjny.
Szczegóły
Typ nieruchomości:
dom na sprzedaż
Dodano:
2025-06-26 13:18:04
Ostatnia aktualizacja:
2025-09-24 20:06:28
Powierzchnia:
129,45 m²
Cena:
895 000 zł.
Cena za m²:
6 913,87 zł.
Liczba pokoi:
4
Lokalizacja:
Polska, wielkopolskie, ostrzeszowski, Kobyla Góra
Rok budowy:
2017
Typ nieruchomości:
wolnostojący
Material budowlany:
ceramiczny Porotherm
Stan budynku:
bardzo dobry
Ogrzewanie:
Tak
Podłączenie wody:
miejska
Gaz:
brak
Miejsca parkingowe:
brak
Umeblowanie pomieszczeń:
Nie
Agent prowadzący:
Sebastian Babik
Na poddaszu:
Tak
Taras:
Tak
Piwnica:
Nie
Wyposażenie kuchni:
Tak
Internet:
Tak
Wyłączność:
Nie
Zwolnienie z prowizji:
Nie
Forma własności:
własność
Klimatyzacja:
Nie
Powierzchnia łazienki:
8,15
Powierzchnia działki:
1092
Liczba łazienek:
1
Kominek:
Tak
Domofon:
Nie
Stolarka okienna:
PCV
Energia elektryczna:
Tak
Siła:
Tak
Kanalizacja:
Tak
Łazienka / wc:
Tak
Woda:
Tak
Typ dachu:
blacho dachówka
Szerokość działki:
21
Długość działki:
52
Ogrodzenie:
metalowe
Droga dojazdowa:
asfaltowa
Kuchnia:
widna
Pośrednik:
Royal Home Sebastian Babik
Nr ogłoszenia:
klikmapa-1306856
Skontaktuj się z ogłoszeniodawcą
Administratorem danych osobowych jest AMK Portal sp. z o.o.
Royal Home Sebastian Babik
790 699 369