kontakt
Jagła Nieruchomości
(52) 328 64 32
Administratorem danych osobowych jest AMK Portal sp. z o.o.
mieszkanie na sprzedaż Bydgoszcz Wyżyny, 464 400 zł, 39.02 m2, stan deweloperski
464 400zł
39,02m²
11 902 zł/m²
2 pok.piętro: 1/2
kujawsko-pomorskie, Bydgoszcz m., Bydgoszcz, Wyżyny
Opis
Wyżyny Nowa Cena apartamentowiec dwa pokoje 39m2
Poszukujesz mieszkania developerskiego na Wyżynach w nowobudowanym kameralnym nowym bloku. Zapraszam
Mieszkanie developerskie Wyżyny- M-3 , dwa pokoje , 39m2 , I piętro .
Budynek w nowoczesnej stylistyce i doskonałej lokalizacji.
Poziom "0"- niezależne garaże 17m2-na osobnej księdze wieczystej- 85 tys.zł
Winda w budynku.
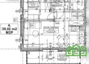
Wizualizacje budynku oraz metraże i rozkład mieszkania -załączone zdjęcie.
W budowanym budynku dostępne mieszkania o różnym metrażach- od 25,8m2 do 62,59m2
W pobliżu-sklepy, szkoły, przedszkola, kościół, MZK.
Planowany odbiór końcowy listopad-grudzień 2026r ,umowa developerska.
Zapraszam na spotkanie
Marek Tomaszewski telef. 5333 99924
Pośrednik odpowiedzialny zawodowo za wykonanie umowy pośrednictwa: Beata Jagła (licencja nr: 16358)
--------------------------
Nota prawna Opis oferty zawarty na stronie internetowej sporządzany jest na podstawie oględzin nieruchomości oraz informacji uzyskanych od właściciela, może podlegać aktualizacji i nie stanowi oferty określonej w art. 66 i następnych K.C. Więcej informacji https://www.jagla.pl/
Oferta wysłana z systemu Galactica Virgo
Mieszkanie developerskie Wyżyny- M-3 , dwa pokoje , 39m2 , I piętro .
Budynek w nowoczesnej stylistyce i doskonałej lokalizacji.
Poziom "0"- niezależne garaże 17m2-na osobnej księdze wieczystej- 85 tys.zł
Winda w budynku.
Wizualizacje budynku oraz metraże i rozkład mieszkania -załączone zdjęcie.
W budowanym budynku dostępne mieszkania o różnym metrażach- od 25,8m2 do 62,59m2
W pobliżu-sklepy, szkoły, przedszkola, kościół, MZK.
Planowany odbiór końcowy listopad-grudzień 2026r ,umowa developerska.
Zapraszam na spotkanie
Marek Tomaszewski telef. 5333 99924
Pośrednik odpowiedzialny zawodowo za wykonanie umowy pośrednictwa: Beata Jagła (licencja nr: 16358)
--------------------------
Nota prawna Opis oferty zawarty na stronie internetowej sporządzany jest na podstawie oględzin nieruchomości oraz informacji uzyskanych od właściciela, może podlegać aktualizacji i nie stanowi oferty określonej w art. 66 i następnych K.C. Więcej informacji https://www.jagla.pl/
Oferta wysłana z systemu Galactica Virgo
Szczegóły
Typ nieruchomości:
mieszkanie na sprzedaż
Dodano:
2025-04-10 13:24:02
Ostatnia aktualizacja:
2025-09-29 13:40:02
Powierzchnia:
39,02 m²
Cena:
464 400 zł.
Cena za m²:
11 901,59 zł.
Piętro:
1 / 2
Liczba pokoi:
2
Lokalizacja:
kujawsko-pomorskie, Bydgoszcz m., Bydgoszcz, Wyżyny
Rok budowy:
2026
Typ budynku:
apartamentowiec
Material budowlany:
silikat
Stan nieruchomości:
deweloperski
Ogrzewanie:
miejskie
Agent prowadzący:
Marek Tomaszewski
Balkon:
Tak
Wyłączność:
Nie
Zwolnienie z prowizji:
Nie
Forma własności:
Własność
Powierzchnia balkonu:
8,4
Powierzchnia łazienki:
3
Stolarka okienna:
PCV 3 szyby, ciepły montaż
Winda:
Tak
Liczba sypialni:
2
Pośrednik:
Jagła Nieruchomości
Nr ogłoszenia:
klikmapa-1266815
Skontaktuj się z ogłoszeniodawcą
Administratorem danych osobowych jest AMK Portal sp. z o.o.
Jagła Nieruchomości
(52) 328 64 32