klikmapa.pl/o/bielsko-biala-osiedle-mieszka-i-436-630-zl-4645-m2-bez-prowizji-id1273431.html
Nr ogłoszenia: klikmapa-1273431 (aby przejść do tego ogłoszenia wpisz klikmapa-1273431 w wyszukiwarce na klikmapa.pl)
Bielsko-Biała Osiedle Mieszka I, 436 630 zł, 46.45 m2, bez prowizji
436 630zł
9 400zł/m²
46,45 m²
3 pok.piętro: 1
/2
ŚLĄSKIE, Bielsko-Biała m., Bielsko-Biała, Osiedle Mieszka I
Opis
Nowa inwestycja w Bielsku-Białej
Nowa inwestycja w Bielsku-Białej - komfortowe mieszkania blisko centrum miasta
Zapraszamy do zapoznania się z naszą najnowszą ofertą - kameralną inwestycją mieszkalną w Bielsku-Białej. To idealna propozycja dla osób poszukujących nowoczesnego i wygodnego mieszkania w cichej, zielonej okolicy, z doskonałym dostępem do miejskiej infrastruktury.
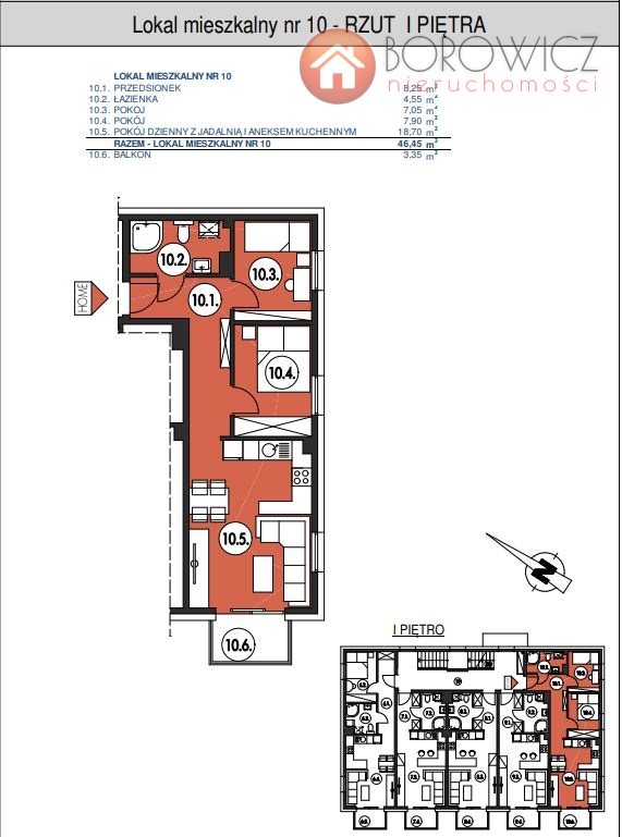
Proponujemy Państwu mieszkanie nr 10, usytuowane na pierwszym piętrze. Ma ono powierzchnię użytkową 46,45 m² i składa się z przestronnego pokoju dziennego połączonego z jadalnią i aneksem kuchennym (18,70 m²), korytarza (8,25 m²), sypialni (7,05 m2), pokoju (7,90 m2) oraz funkcjonalnej łazienki (4,55 m²). Dodatkowym atutem lokalu jest balkon o powierzchni 3,35 m², z którego można cieszyć się widokiem na zieleń.
Cena tego mieszkania wynosi 436 630,00 zł. Do lokalu obligatoryjnie trzeba dokupić 2 miejsca postojowe zewnętrzne, bądź 1 miejsce postojowe zewnętrzne i 1 miejsce postojowe w garażu podziemnym.
Cena jednego miejsca postojowego zewnętrznego 21 000 zł.
Cena jednego miejsca w garażu 39 500 zł.
Inwestycja oferuje różnorodne mieszkania - od jednopokojowych, po dwupokojowe i trzypokojowe lokale. Budynek, w którym znajduje się 15 mieszkań, jest położony zaledwie 1600 metrów od centrum miasta, co gwarantuje szybki dostęp do najważniejszych punktów usługowych i rekreacyjnych.
Podana w ogłoszeniu cena dotyczy mieszkania w stanie deweloperskim. Istnieje możliwość sprzedaży mieszkań w standardzie "pod klucz" - wykończone całkowicie wraz z meblami kuchennymi i AGD.
Cechy, które wyróżniają naszą inwestycję:
- Kompaktowa inwestycja z 15 mieszkaniami.
- Bliskość centrum miasta i spokojna okolica z niską zabudową mieszkalną.
- Mieszkania o powierzchniach od 30 m² do 46,5 m² z funkcjonalnie zaprojektowaną przestrzenią mieszkalną.
- Ogrzewanie podłogowe w każdym mieszkaniu, co zapewnia komfort i oszczędność.
- Miejsca parkingowe dostępne na zewnątrz i w garażu podziemnym.
- Balkon w każdym mieszkaniu
- Nowoczesne okna przesuwno-uchylne i ogrodzona posesja.
- Szybki dostęp do dróg wylotowych w każdym kierunku.
Całość inwestycji realizowana jest zgodnie z harmonogramem, a zakończenie prac planowane jest na listopad 2025 roku.
Zachęcamy do rezerwacji mieszkań już teraz, zgodnie z nowymi przepisami ustawy deweloperskiej (umowa deweloperska i płatności na rachunek powierniczy).
Przy zakupie nie płacisz podatku PCC, co oznacza oszczędność 2% ceny zakupu.
Zapraszamy do kontaktu - chętnie odpowiemy na wszystkie pytania i umówimy się na prezentację!
0% - Przy tej ofercie Kupujący nie płaci prowizji dla Agencji
NOTA PRAWNA
Opis oferty zawarty na stronie internetowej biura oraz portalach zewnętrznych sporządzany jest na podstawie oględzin nieruchomości oraz informacji uzyskanych od właściciela. Może on podlegać aktualizacji i nie stanowi oferty handlowej określonej w art. 66 i następnych Kodeksu Cywilnego. W rozumieniu przepisów prawa przedstawiona oferta ma charakter informacyjny.
Pośrednik odpowiedzialny zawodowo za wykonanie umowy pośrednictwa: Janusz Borowicz (licencja nr: 13934)
Oferta wysłana z systemu BCK Galactica
Zapraszamy do zapoznania się z naszą najnowszą ofertą - kameralną inwestycją mieszkalną w Bielsku-Białej. To idealna propozycja dla osób poszukujących nowoczesnego i wygodnego mieszkania w cichej, zielonej okolicy, z doskonałym dostępem do miejskiej infrastruktury.
Proponujemy Państwu mieszkanie nr 10, usytuowane na pierwszym piętrze. Ma ono powierzchnię użytkową 46,45 m² i składa się z przestronnego pokoju dziennego połączonego z jadalnią i aneksem kuchennym (18,70 m²), korytarza (8,25 m²), sypialni (7,05 m2), pokoju (7,90 m2) oraz funkcjonalnej łazienki (4,55 m²). Dodatkowym atutem lokalu jest balkon o powierzchni 3,35 m², z którego można cieszyć się widokiem na zieleń.
Cena tego mieszkania wynosi 436 630,00 zł. Do lokalu obligatoryjnie trzeba dokupić 2 miejsca postojowe zewnętrzne, bądź 1 miejsce postojowe zewnętrzne i 1 miejsce postojowe w garażu podziemnym.
Cena jednego miejsca postojowego zewnętrznego 21 000 zł.
Cena jednego miejsca w garażu 39 500 zł.
Inwestycja oferuje różnorodne mieszkania - od jednopokojowych, po dwupokojowe i trzypokojowe lokale. Budynek, w którym znajduje się 15 mieszkań, jest położony zaledwie 1600 metrów od centrum miasta, co gwarantuje szybki dostęp do najważniejszych punktów usługowych i rekreacyjnych.
Podana w ogłoszeniu cena dotyczy mieszkania w stanie deweloperskim. Istnieje możliwość sprzedaży mieszkań w standardzie "pod klucz" - wykończone całkowicie wraz z meblami kuchennymi i AGD.
Cechy, które wyróżniają naszą inwestycję:
- Kompaktowa inwestycja z 15 mieszkaniami.
- Bliskość centrum miasta i spokojna okolica z niską zabudową mieszkalną.
- Mieszkania o powierzchniach od 30 m² do 46,5 m² z funkcjonalnie zaprojektowaną przestrzenią mieszkalną.
- Ogrzewanie podłogowe w każdym mieszkaniu, co zapewnia komfort i oszczędność.
- Miejsca parkingowe dostępne na zewnątrz i w garażu podziemnym.
- Balkon w każdym mieszkaniu
- Nowoczesne okna przesuwno-uchylne i ogrodzona posesja.
- Szybki dostęp do dróg wylotowych w każdym kierunku.
Całość inwestycji realizowana jest zgodnie z harmonogramem, a zakończenie prac planowane jest na listopad 2025 roku.
Zachęcamy do rezerwacji mieszkań już teraz, zgodnie z nowymi przepisami ustawy deweloperskiej (umowa deweloperska i płatności na rachunek powierniczy).
Przy zakupie nie płacisz podatku PCC, co oznacza oszczędność 2% ceny zakupu.
Zapraszamy do kontaktu - chętnie odpowiemy na wszystkie pytania i umówimy się na prezentację!
0% - Przy tej ofercie Kupujący nie płaci prowizji dla Agencji
NOTA PRAWNA
Opis oferty zawarty na stronie internetowej biura oraz portalach zewnętrznych sporządzany jest na podstawie oględzin nieruchomości oraz informacji uzyskanych od właściciela. Może on podlegać aktualizacji i nie stanowi oferty handlowej określonej w art. 66 i następnych Kodeksu Cywilnego. W rozumieniu przepisów prawa przedstawiona oferta ma charakter informacyjny.
Pośrednik odpowiedzialny zawodowo za wykonanie umowy pośrednictwa: Janusz Borowicz (licencja nr: 13934)
Oferta wysłana z systemu BCK Galactica
Szczegóły
Typ nieruchomości:
mieszkanie na sprzedaż
Dodano:
2025-04-29 12:52:02
Ostatnia aktualizacja:
2025-10-13 12:03:07
Powierzchnia:
46,45 m²
Cena:
436 630 zł.
Cena za m²:
9 400 zł.
Piętro:
1 / 2
Liczba pokoi:
3
Lokalizacja:
ŚLĄSKIE, Bielsko-Biała m., Bielsko-Biała, Osiedle Mieszka I
Typ budynku:
apartamentowiec
Stan nieruchomości:
Do wykończenia
Agent prowadzący:
Janusz Borowicz
Licencja pośrednika:
13934
Balkon:
Tak
Wyłączność:
Nie
Zwolnienie z prowizji:
Tak
Winda:
Nie
Pośrednik:
Borowicz Nieruchomości
Nr ogłoszenia:
klikmapa-1273431